가산 대륭포스트 6차 110평대 사무실 인테리어
베이지와 브라운으로 정돈한 유연한 사무실
안녕하세요, 굿테리어 함영주 디자이너입니다 :)
이번 현장은 가산 대륭포스트 6차 110평대 사무실 인테리어로, 전체를 베이지톤으로 맞추고 브라운 포인트를 더해 차분하면서도 깊이 있게 완성했습니다.
외부 미팅이 잦고 좌석을 많이 원하셔서 입구 전실 뒤에 카페테리아와 폴딩도어 소회의실을 바로 배치해 손님이 업무자리를 거치지 않고 회의를 시작할 수 있도록 했고, 문을 열면 카페테리아까지 넓게 이어 쓰실 수 있게 계획했습니다.
직무 특성에 맞춰 워크스페이스 A와 B를 분리하고 임원실과 이사장실은 역할에 맞게 구성했으며, 유리 파티션과 간접조명, 매입등으로 시야는 시원하게 유지하면서도 자리마다 밝기가 고르게 느껴지도록 했습니다.
그럼 지금부터 하나씩 살펴보실까요?
👇 함께 보면 좋은 인테리어

평택 대한불교 불승종 선원 인테리어 시공사례

가산 제이에스에듀 복층 사무실

성북구 전자상거래 사무실
가산 40평 사무실 인테리어

광명 40평 중고차 업체 사무실 인테리어

평택 20평 소형 사무실 인테리어

영등포 70평 IT 회사 오피스 인테리어

선유도 29평 세무사 사무실

가산 33평 아스크타워 노무법인 사무실

가산 123평 대형 사무실 인테리어

가산 50평 대륭포스트타워 5차 사무실 인테리어

가산 31평 사무실 쇼룸 인테리어

가산 10평 샐러드바 인테리어

서초 30평 헬스장 인테리어

양평 단독주택형 사무실 인테리어

금천구 휴대폰 매장

인천 36평 맨틀수학 학원 인테리어 시공사례
30평대 재활치료센터 인테리어

도곡동 110평 대형 헬스장 인테리어

강서 100평대 포텐테짐 헬스장

도곡동 피트리움 헬스장

양천구 40평 영어학원 인테리어

마곡 82평 공유오피스 인테리어

인천서구 법무법인 사무실 인테리어

서초 34평형 푸르지오써밋 아파트 인테리어 시공사례

마곡 패트릭스와플 카페 인테리어

구로 34평 노무법인 사무실 인테리어
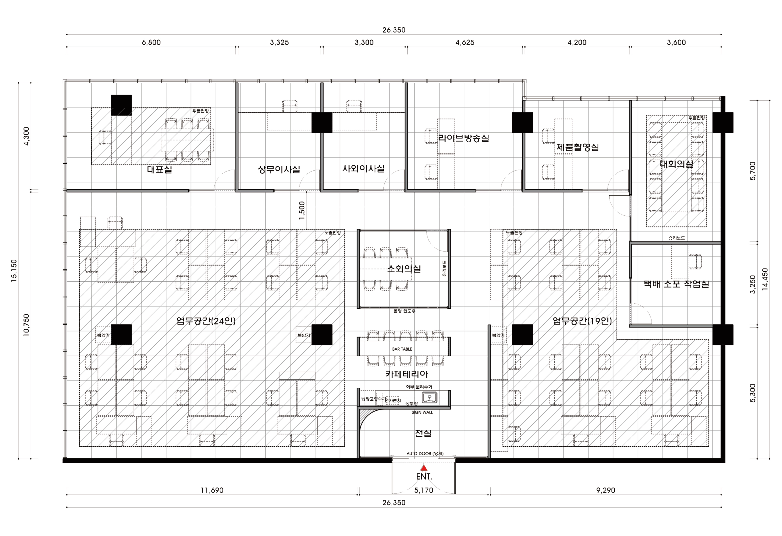
현장 체크
- 면적: 393.06m² (118.9평)
- 천장고: 2700mm
- 기준도면: 제3안 평면도 기준으로 구획 시공
- 입구 전실: 전실 공간 조성으로 내부와 공용부 동선 분리
- 카페테리아: 전용 카페테리아 공간 조성
- 소회의실: 카페테리아와 인접 배치, 폴딩도어 설치로 가변 분리
- 업무공간 구획: 워크스페이스 A/B 물리적 분리 시공
- 독립실 구성: 임원실 및 이사장실 별도 실 구획 신설
평면도

카페테리아
- 입구 전실 바로 뒤에 두어 내부 동선과 손님 동선을 자연스럽게 나눴습니다. 바 테이블과 벽면 수납으로 짧은 티타임과 간단한 스탠딩 미팅이 편합니다.
- 천장고 2700에 맞춰 매입등과 간접조명을 섞고, 베이지 바탕에 브라운 포인트 마감을 넣어 따뜻한 분위기를 만든 뒤 주변 업무공간과 톤을 통일했습니다.
소회의실
- 카페테리아와 접이식 유리도어로 연결했습니다. 문을 열면 카페테리아까지 확장 사용이 가능하고, 닫으면 외부 손님도 바로 모실 수 있어 편합니다.
- 6인 기준 테이블과 보드 벽을 배치하고, 흡음 마감과 간접조명으로 말소리가 또렷하게 들리면서도 주변에 소음이 덜 번지도록 했습니다.
업무공간 A
- 24인 좌석을 섬 형태로 배열하고 중앙에 넓은 통로를 확보해 자리 이동과 문서 운반이 수월합니다. 외곽 벽면에는 낮은 장을 길게 두어 개인 수납을 깔끔히 정리합니다.
- 전면 유리 벽체로 들어오는 빛을 살리고, 눈부심을 덜어주는 매입등 간격으로 균형을 맞췄습니다. 바닥 배선 정리 라인을 숨겨 책상 위가 지저분해 보이지 않습니다.
업무공간 B
- 19인 배치를 별도 구역으로 분리해 팀 단위 집중이 쉬운 구조입니다. 출입구에서 바로 시선이 닿지 않도록 가벽을 두어 업무 몰입에 도움이 됩니다.
- 한쪽 끝에 공용 수납과 간단한 작업 코너를 모아 공용 쓰임을 한곳으로 정리했습니다. 베이지 톤 바닥과 브라운 몰딩으로 A 구역과 톤을 맞추되 분위기는 차분하게 잡았습니다.
그럼 이제 전체 디자인 컨셉을 함께 살펴볼까요?
디자인

천장은 텍스 천장과 매입등으로 눈부심을 덜어주고 밝기를 일정하게 잡았습니다.
바닥은 카펫 타일로 선택해 발소리가 덜 들리고, 미닫이 유리문으로 고객 동선과 업무구역을 깔끔히 나눠드렸습니다.

바닥은 카펫 타일로 마감해 발걸음 소리가 덜 들리구요. 안쪽은 유리 칸막이와 반투명 필름을 적용해 너무 드러나지 않으면서 필요한 시야만 닿도록 했습니다.
호수 표기는 작은 사인으로 정리해 벽면의 단정한 분위기를 지켰습니다.

천장은 텍스 천장과 매입등으로 고르게 비춰 벽면이 깨끗하게 보이고, 전실 바닥은 카펫타일로 이동 소음이 적습니다.
안쪽은 베이지톤과 우드 포인트로 이어지며, 모서리는 곡선 화단으로 마감해 전실이 딱딱해 보이지 않게 했습니다.

매입등을 벽 세척으로 배치해 표면을 고르게 밝혔고, 바닥은 그레이 카펫 타일로 마감해 이동이 잦아도 걸음이 편합니다.
한쪽에는 자갈을 담은 실내 조경을 두어 베이지 톤에 자연스러운 포인트를 더했고, 천장고 2700에 맞춰 텍스 천장과 조명 간격을 정리했습니다.

상부 레일 미닫이문과 유리문을 함께 두어 시야는 밝게 유지하고, 고객 방문 시에도 업무공간과 겹치지 않게 필요할 때만 구분할 수 있습니다.
텍스 천장에 매입등과 벽면 조명을 배치해 고르게 환하고, 바닥은 카펫타일로 이어 발소리가 덜 들리도록 했습니다.
문선은 생략하고 무몰딩 디테일로 정리해 복도가 더 말끔해 보입니다.

바닥은 카펫 타일, 천장은 텍스 천장과 매입등으로 정리해 소음이 덜하고 빛이 고르게 퍼지도록 했습니다.
베이지톤 라운드 벤치형 화분대로 첫인상에 부드러움을 더했습니다.

옆쪽 소회의실은 유리 파티션과 폴딩도어로 분리해 방문 고객이 바로 들어가 미팅하기 좋고, 문을 열면 카페테리아까지 함께 넓게 쓸 수 있습니다.
천장은 매입등으로 정리해 눈부심을 덜었고, 밝은 타일 바닥은 물걸레질만 해도 금방 깔끔해집니다.

베이지톤과 라이트 우드를 기본으로 하고, 검정 자갈에 화이트 스톤을 더해 대비를 주어 공간이 한눈에 깔끔해 보입니다.
세로로 배치한 원형 거울과 천장 매입등으로 깊이를 살리고, 유리 파티션으로 전실이 더 단정해 보입니다.

바닥은 대형 포세린 타일로 연결해 복도 폭이 넓어 보이구요, 천장은 매입등만 사용해 눈부심을 덜었습니다.
패널 이음과 문선은 숨겨 선을 정리해 사무실의 시작이 깔끔하게 느껴지도록 했습니다.

오른쪽 벽은 동일한 마감의 숨은 문으로 정리해 복도가 길고 깨끗하게 보입니다. 천장에는 매입등을 배치해 눈부심 없이 밝기를 균일하게 했습니다.
바닥은 무광 포세린 타일로 관리가 편하고, 원형 기둥을 살려 카페테리아까지 자연스럽게 이어지도록 설계했습니다.


워크스페이스는 팀에 맞춰 두 구역으로 공간 분리했고 동선은 단순하게 정리했습니다. 전체는 베이지톤과 브라운 포인트로 맞추고 헤링본 바닥, 인조대리석 카운터, 매입등과 간접조명으로 차분한 분위기를 만들었습니다.

오른쪽 폴딩도어 안쪽에 소회의실을 두어 방문 고객이 업무공간을 거치지 않고 바로 회의를 시작할 수 있고, 문을 열면 카페테리아를 넓게 같이 씁니다.
천장은 매입등으로 정리하고, 헤링본 바닥과 블랙 포인트 바의자로 균형을 잡아 공간에 깊이감을 더했습니다.

천장에는 코브 간접조명과 라인 조명을 함께 적용해 빛이 고르게 퍼지도록 했습니다.
유리 파티션으로 회의실을 분리해 시야는 탁 트이고 필요한 대화는 안쪽에서 편하게 나눌 수 있습니다.
일자형 데스크와 모니터 받침으로 높이를 맞추고 선을 깔끔히 정리해 작업이 한결 수월합니다.

직무 특성에 맞춰 워크스페이스 A와 B를 분리하고 임원실과 이사장실은 업무 성격에 맞게 배치했습니다. 2700mm 천장고를 살려 간접조명과 선형 조명을 조합해 눈부심을 줄이고 균형감을 맞췄습니다.
전체는 베이지 톤에 브라운 포인트를 더해 차분함과 깊이를 주었고, 유리 파티션과 목재 프레임으로 시야는 탁 트이면서도 팀별 집중이 쉬운 동선을 만들었습니다. 393.06제곱미터 규모에 맞춰 자리 수를 충분히 확보했습니다.

천장은 간접조명과 매입등을 함께 사용해 눈이 편하고 자리마다 밝기가 고르게 느껴집니다.
복도를 기준으로 팀 구역을 분리해 서로 방해 없이 오가도록 계획했습니다.

라이트 우드 수납장과 무광 상판으로 정돈감을 주고, 물이 튀는 벽은 세로 타일로 마감해 물청소가 편하도록 했습니다.
헤링본 바닥으로 포인트를 주고 천장은 매입등으로 밝기를 균일하게 잡아 업무 동선 사이에서도 눈부심이 덜합니다.
전체를 베이지톤으로 맞춰 업무공간과 자연스럽게 이어지면서도 분위기는 차분하게 유지했습니다.

좌측은 우드 수납과 타일 벽으로 정리하고, 우측은 테라조 상판 바 카운터로 가볍게 머무르기 좋게 만들었습니다.
업무공간은 워크스페이스 A와 B 분리로 자리 수를 확보하고 팀별로 집중하기 쉽게 했습니다. 전반은 베이지톤에 브라운 포인트를 더해 차분한 깊이를 담고, 매입등과 간접조명 라인으로 빛이 부드럽게 퍼지도록 했습니다.

방문 고객과 바로 미팅이 가능하고, 도어를 열면 카페테리아까지 이어져 공간을 넓게 활용할 수 있습니다.
베이지톤과 우드 포인트를 기본으로 헤링본 바닥, 매입등과 간접조명을 더해 담백하고 집중하기 편한 회의 분위기를 만들었습니다.

전체는 베이지톤과 브라운 포인트로 맞추고, 바닥은 포세린 타일로 선택해 일상 관리가 편합니다.
간접조명과 매입등을 조합해 눈부심이 덜하고 책상 위가 고르게 밝도록 설계했습니다.

입구 전실을 지나면 카페테리아와 폴딩도어 소회의실이 바로 이어져 외부 방문객이 업무자리를 거치지 않고 회의할 수 있고, 문을 열면 카페테리아를 넓게 함께 쓰실 수 있습니다.
워크스페이스 A와 B는 팀별로 분리해 좌석을 넉넉히 배치했고, 임원실과 이사장실은 필요한 기능에 맞춰 구성했습니다.

전체는 베이지톤과 브라운 포인트로 톤을 맞추고, 책상 상판과 수납 모듈로 따뜻함을 더했어요.
선형 매입등과 간접조명으로 밝기는 충분하면서도 눈이 편하도록 했고, 중앙 동선을 넓혀 이동이 자연스럽습니다.

긴 면적에 맞춰 선형 조명을 길게 배치하고 벽과 천장 상부에 간접조명을 넣어 빛이 부드럽게 퍼지도록 계획했습니다.
패브릭 파티션을 낮게 세운 화이트 책상 배열로 서로 소통은 가능하면서도 집중이 잘 되고, 측면의 유리 칸막이 회의실과 자연스럽게 이어집니다.

좌석은 긴 복도축을 기준으로 배치하고 유리 파티션을 더해 시야는 탁 트이면서도 필요한 곳에만 시선이 모이도록 했습니다.
벽면은 대리석 질감 패널과 원목 프레임으로 정리했고, 상부는 간접조명과 매입등으로 밝기를 고르게 맞췄습니다.
바닥은 주요 동선은 카펫, 실별 구역은 헤링본 마루로 달리해 걸음이 조용하고 청소가 수월합니다.

마주보는 데스크에 천 파티션을 낮게 두어 집중하기 좋고 팀원끼리 소통도 편합니다.
전면 유리창으로 낮엔 자연광이 넉넉하고, 벽면에는 우드 수납장을 길게 배치해 잡동사니를 깔끔하게 정리할 수 있습니다.

코브 천장과 간접조명, 매입등을 함께 써서 2700mm 높이를 살리면서 눈부심을 덜어냈습니다.
벽면에는 니치와 오픈 선반을 넣어 작은 소품만 올려도 단정하게 보이도록 했고, 바닥은 밝은 포세린 타일로 맞춰 베이지톤과 브라운 포인트가 따뜻하게 이어집니다.


워크스페이스와는 유리 파티션으로 분리해 시야는 시원하고 동선 충돌은 덜하도록 구성했습니다.
우드 천장과 매입등으로 2700 천장고에서도 마감선이 깔끔하고, 한쪽 벽의 빌트인 선반과 간접조명은 자료 정리와 디스플레이에 좋아요.

천장은 우드 패널, 바닥은 헤링본 마루로 통일감을 맞추고, 선반은 서류와 샘플을 정리하기 좋게 설계했습니다.
테이블 위는 매입등으로 밝히고 벽면과 선반에는 간접조명과 벽부등을 더해 눈부심은 줄이고 분위기는 은은하게 잡았습니다.

벽면에는 브론즈 메탈 선반과 질감 마감판을 섞고, 선반 하부 간접조명과 천장 매입등을 조합해 눈부심을 덜고 서류 정리가 편합니다.
전체적으로 군더더기를 덜어 미팅 전 준비와 집중 업무가 한 자리에서 자연스럽게 이어지도록 구성했습니다.

전체는 베이지톤으로 맞추고 브라운 포인트로 깊이를 더했습니다. 천장 단차에 간접조명과 선형 펜던트를 넣어 눈부심을 덜고 작업면 밝기를 고르게 맞췄습니다.
한쪽 벽은 보드형 벽패널로 정리했고, 대형 창으로 들어오는 자연광이 하루 내내 공간을 환하게 비춰줍니다.

좌석은 팀 단위로 묶어 배치하고 낮은 파티션을 사용해 시선을 정돈했습니다. 동선을 넉넉하게 두어 옆자리와 부딪히지 않도록 했습니다.
회의실은 유리 파티션과 원목 프레임으로 분리해 시야는 탁 트이면서도 회의에만 시선이 모이도록 했습니다.
천장에는 매입등과 간접 조명, 라인 조명을 조합해 책상 위가 고르게 밝도록 설계했습니다.

바탕은 베이지톤으로 맞추고 유리 파티션으로 회의 영역을 분리해 답답하지 않게 했습니다. 책상은 밝은 상판과 원목 받침대로 정리하기 쉽고, 중앙의 출력대는 동선을 짧게 잡아 업무가 수월합니다.

좌석을 많이 원하셔서 워크스페이스 A와 B를 나눠 배치하고 라운드 기둥으로 모서리를 둥글게 처리해 부딪히지 않도록 했습니다.
화이트 데스크를 벤치형으로 배열해 좌석 수를 넉넉하게 확보했습니다.
전체는 베이지톤에 브라운 포인트를 더하고 천장고 2700에 맞춰 선형 매입등과 코브 간접조명을 구성해 밝고 차분한 업무 분위기를 만들었습니다.
디자이너 후기
외부 미팅이 잦고 좌석을 많이 원하셔서 사무실 입구 전실 뒤에 카페테리아와 폴딩도어 소회의실을 붙여 배치해 손님이 업무자리를 거치지 않고 바로 미팅을 시작하고, 필요하면 문을 열어 함께 넓게 쓰시도록 했습니다.
이번 가산 대륭포스트 6차 110평대 사무실 인테리어는 좌석 수와 팀 운영을 위해 워크스페이스 A와 B를 분리하고 임원실과 이사장실을 역할에 맞게 배치했으며, 전체는 베이지톤과 브라운 포인트에 간접조명과 매입등을 더해 눈이 편하고 자리마다 밝기가 고르게 느껴지도록 설계했습니다.
궁금한 점은 문의 남겨주시면 친절히 안내드리겠습니다 :)
그럼 지금까지 굿테리어 함영주 디자이너였습니다.
다음에 또 다른 프로젝트로 찾아뵙겠습니다!






