인천서구 법무법인 사무실 인테리어
신뢰감 주는 공간

안녕하세요! 굿테리어 함영주 디자이너입니다 :)
이번에 소개해 드릴 곳은 인천 서구에 위치한 법무법인 사무실입니다.
법무법인이라는 공간의 특성을 살려 방문객에게는 깊은 신뢰감을, 직원분들께는 편안한 업무 환경을 만들어 드리는 것이 가장 중요한 목표였습니다.
이를 위해 짙은 우드 톤과 무게감 있는 대리석을 사용해 전문적인 분위기를 연출하는 동시에, 유리 파티션과 부드러운 조명으로 따뜻하고 개방적인 느낌을 더해주었습니다.
신뢰와 편안함이 공존하는 공간, 지금부터 함께 둘러보실까요?
👇 함께 보면 좋은 인테리어

고양 28평 사무실 인테리어

송도 레빗비 마켓팅 사무실 인테리어 시공사례

광명 30평 스튜디오 사무실 인테리어
가산 20평 스튜디오 사무실 인테리어

가산 132평 대형 사무실 인테리어
가산 퍼블릭 에듀프레임 사무실
안산 40평 사무실 인테리어 시공사례
_049.webp)
광명 34평 법무법인 테오 사무실

고양 28평 사무실

여의도 30평 법무법인 사무실 인테리어

오산 40평 쇼핑몰 공장형 사무실 인테리어
동탄 30평 영어학원 인테리어

평택 30평대 선원 인테리어

송도 엠닥스 사무실 인테리어 시공사례

김포 33평 JK 영어학원
나나 스튜디오

가산 35평 사무실 인테리어
수원 24평 수학학원 인테리어

천호동 27평 영어학원 인테리어

관악구 30평 사무실 인테리어

선유도 29평 세무사 사무실

서초 34평형 푸르지오써밋 아파트 인테리어 시공사례

마곡 패트릭스와플 카페 인테리어

구로 34평 노무법인 사무실 인테리어

송파구 사무실 인테리어 시공사례

방배동 30평 한의원 인테리어
현장 체크
- 면적: 94.55m² (28.6평)
- 천장고: 2900mm
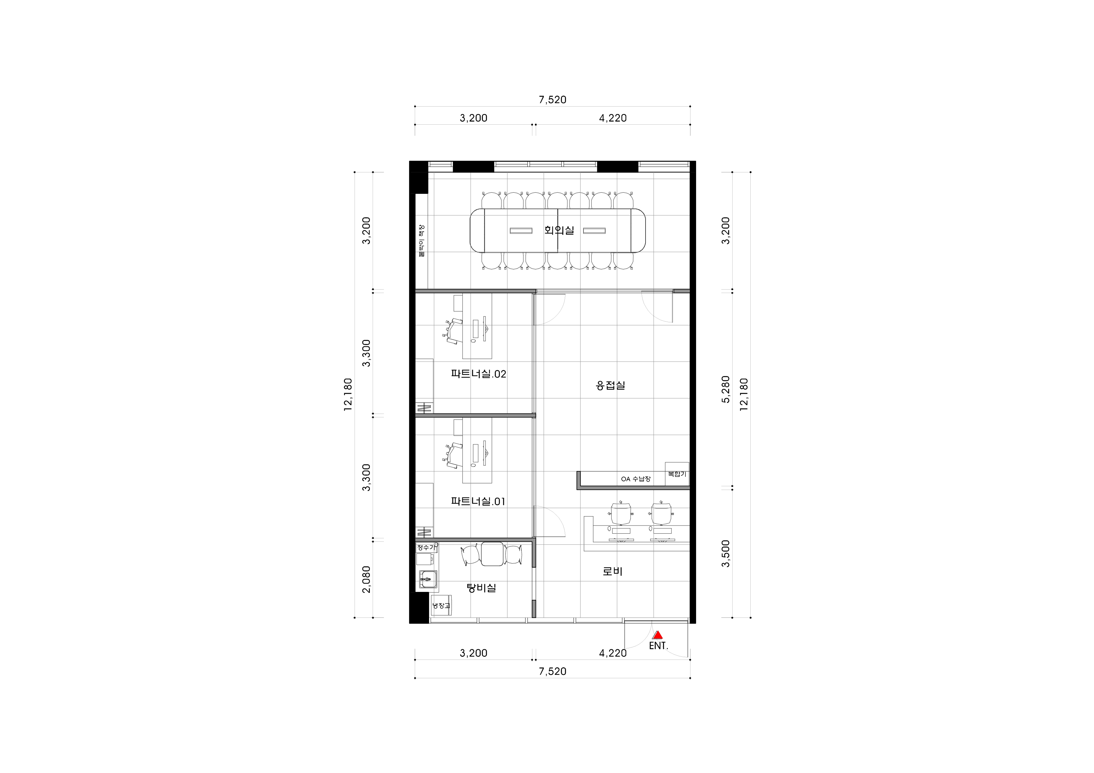
평면도

- 사무실에 들어섰을 때 신뢰감을 주는 첫인상을 위해 인포데스크와 고객 대기 공간을 함께 배치했습니다.
- 유리 파티션을 활용해 공간을 나누어 답답하지 않고 탁 트인 느낌을 주도록 했습니다.
- 업무 집중도와 프라이버시를 고려해 두 개의 독립된 공간으로 구성했습니다.
- 각 실에는 효율적인 업무를 위한 책상과 넉넉한 붙박이장을 마련해드렸습니다.
- 최대 10명까지 수용 가능한 넓은 회의 공간을 가장 안쪽에 배치했습니다.
- 외부의 방해 없이 중요한 회의나 상담에 집중할 수 있는 환경을 만들어드렸습니다.
그럼 이제 구체적인 디자인은 어떻게 완성되었는지 함께 보실까요?
디자인

밝은 톤의 복도 바닥과 대비되어 공간에 안정감을 주면서도 고급스러운 느낌이랍니다.

세련되고 전문적인 이미지를 더해 방문객을 맞이하는 첫인상을 완성했습니다.

유리 파티션 하단에는 불투명 시트지를 붙여 외부 시선을 자연스럽게 차단하고, 벽에 설치한 작은 조명으로 은은한 포인트를 더해주었답니다.

과감한 패턴의 화이트 마블 인포데스크를 중심으로 공간에 무게감을 더했습니다.
데스크 뒤편으로는 은은한 질감의 그레이 톤 아트월과 로고에 집중되는 조명을 설치해 전문적인 이미지를 연출했습니다.


답답해 보이지 않도록 유리 파티션을 사용해 회의실과 공간을 나누고, 전체적으로 밝은 톤을 사용해 깨끗하고 전문적인 분위기를 연출했습니다.

직선이 많은 공간에 부드러운 아치형 게이트를 시공해 딱딱한 느낌을 덜어내고 편안함을 더했습니다.

깨끗한 화이트 톤을 바탕으로 네이비 컬러의 하부장을 배치해 공간에 활기를 더했습니다.
여기에 따뜻한 느낌의 우드 체어를 두어 잠시나마 편안하게 쉴 수 있는 분위기를 연출했어요.
짙은 우드 필름으로 마감한 아치형 게이트가 부드러운 포인트를 더해준답니다.

차분한 올리브 그린 컬러로 한쪽 벽면에 포인트를 주니 안정감 있고 세련된 분위기가 완성되었습니다.

따뜻한 우드 톤의 가구를 배치해 편안한 느낌을 주었으며, 바닥은 관리가 편한 그레이 타일로 마감하여 실용성을 더했습니다.

중앙 부분에는 반투명 시트지를 붙여 중요한 회의 중에도 시선이 방해받지 않도록 세심하게 신경 썼습니다.

밝은 우드톤의 맞춤 제작 가구를 배치해 부드러운 느낌을 주었고, 벽면 전체에는 화이트 빌트인 수납장을 시공해 깔끔함을 더했습니다. 방문객이 편안하게 머무를 수 있는 공간으로 완성되었습니다.

천장에는 매입등과 평판 조명을 고르게 설치해 사무 공간 전체가 밝고 쾌적하게 느껴지도록 했습니다.

전체적으로 화이트 톤으로 깔끔하게 유지하여 넓어 보이도록 했습니다. 큰 창으로 들어오는 자연광이 공간을 더 환하고 편안하게 만들어 준답니다.

전문성과 신뢰감이 느껴지는 깔끔하고 정돈된 회의 공간입니다.

벽과 이어진 매립형 선반장에는 따뜻한 색감의 간접조명을 설치해 상장이나 인증서가 돋보이도록 연출했습니다.
전체적으로 신뢰감을 주는 깔끔한 공간이 완성되었습니다.

벽과 테이블은 화이트로 통일해 깨끗하고 넓어 보이도록 했고, 바닥은 차분한 그레이 타일로 안정감을 주었습니다.
여기에 브라운 톤의 패브릭 의자를 배치해서 딱딱하지 않고 부드러운 느낌을 더했어요.
긴 회의도 편안하게 진행할 수 있는 전문적이고 실용적인 공간이랍니다.
디자이너 후기
이번 프로젝트는 법무법인이라는 공간의 특성을 살려 신뢰감을 주면서도, 방문객이 편안함을 느낄 수 있도록 해달라는 요청에서 시작되었습니다.
이를 위해 입구와 회의실에는 짙은 우드 톤과 매립 선반장을 활용해 전문적인 분위기를 강조했습니다.
동시에 딱딱한 느낌을 덜어내고자 유리 파티션으로 시야를 트이게 하고, 따뜻한 색감의 조명과 가구를 곳곳에 배치했답니다.
이처럼 무게감 있는 소재와 부드러운 요소를 조화롭게 사용하여 신뢰와 편안함이 공존하는 사무실 인테리어를 완성했습니다.
궁금한 점은 문의 남겨주시면 친절히 안내드리겠습니다 :)
그럼 지금까지 굿테리어 함영주 디자이너였습니다. 다음에 또 다른 프로젝트로 찾아뵙겠습니다!






