송도 엠닥스 사무실 인테리어 시공사례

안녕하세요! 공간에 기분 좋은 에너지를 더하는 굿테리어 함영주 디자이너입니다 :)
이번 프로젝트는 송도에 위치한 19.7평 규모의 엠닥스 사무실 인테리어 현장입니다.
전체적으로 깨끗한 화이트 톤을 바탕으로 기업의 상징색인 그린 컬러를 포인트로 사용해 생동감 넘치는 공간을 만들어드렸습니다.
답답하지 않으면서도 업무 공간은 명확히 분리되길 원하셨던 고객님의 요청에 따라 유리 파티션을 적극 활용했는데요, 개방감을 주면서도 간접조명과 우드 소재를 더해 아늑하고 세련된 분위기를 완성하는 데 집중했습니다.
자, 그럼 긍정적인 에너지가 가득한 오피스로 함께 들어가 보실까요?
👇 함께 보면 좋은 인테리어

영등포 세리정보기술 사무실

높은 층고와 심플함이 돋보이는 사무실 공간
가산 퍼블릭 에듀프레임 사무실

구로 34평 노무법인 사무실 인테리어

용인 65평 사무실 인테리어

가산 38평 KS타워 사무실 인테리어

관악구 지아트 사무실

송도 레빗비 마켓팅 사무실 인테리어 시공사례

성북구 46평 워크&스터디 공유오피스 인테리어

평택 30평대 선원 인테리어
마켓팅 회사 40평 사무실 인테리어

26평 국어학원 인테리어
50평 아파트 인테리어

김포 33평 JK 영어학원

30평대 아파트 화장실 인테리어

평택 대한불교 불승종 선원 인테리어 시공사례

가산 35평 나루코퍼레이션 사무실

중국 10평 화장품 매장 인테리어
송도 10평 카페 인테리어

청량리 13평 미용실 인테리어

동대문 16평 워터룸 인테리어

금천구 휴대폰 매장

아산 19평 수학학원 인테리어

마곡 패트릭스와플

광교 41평 사무실 인테리어

송도 스토리움 멤버십 어린이 영어 도서관

양천구 40평 영어학원 인테리어

마곡 82평 공유오피스 인테리어

인천서구 법무법인 사무실 인테리어
현장 체크
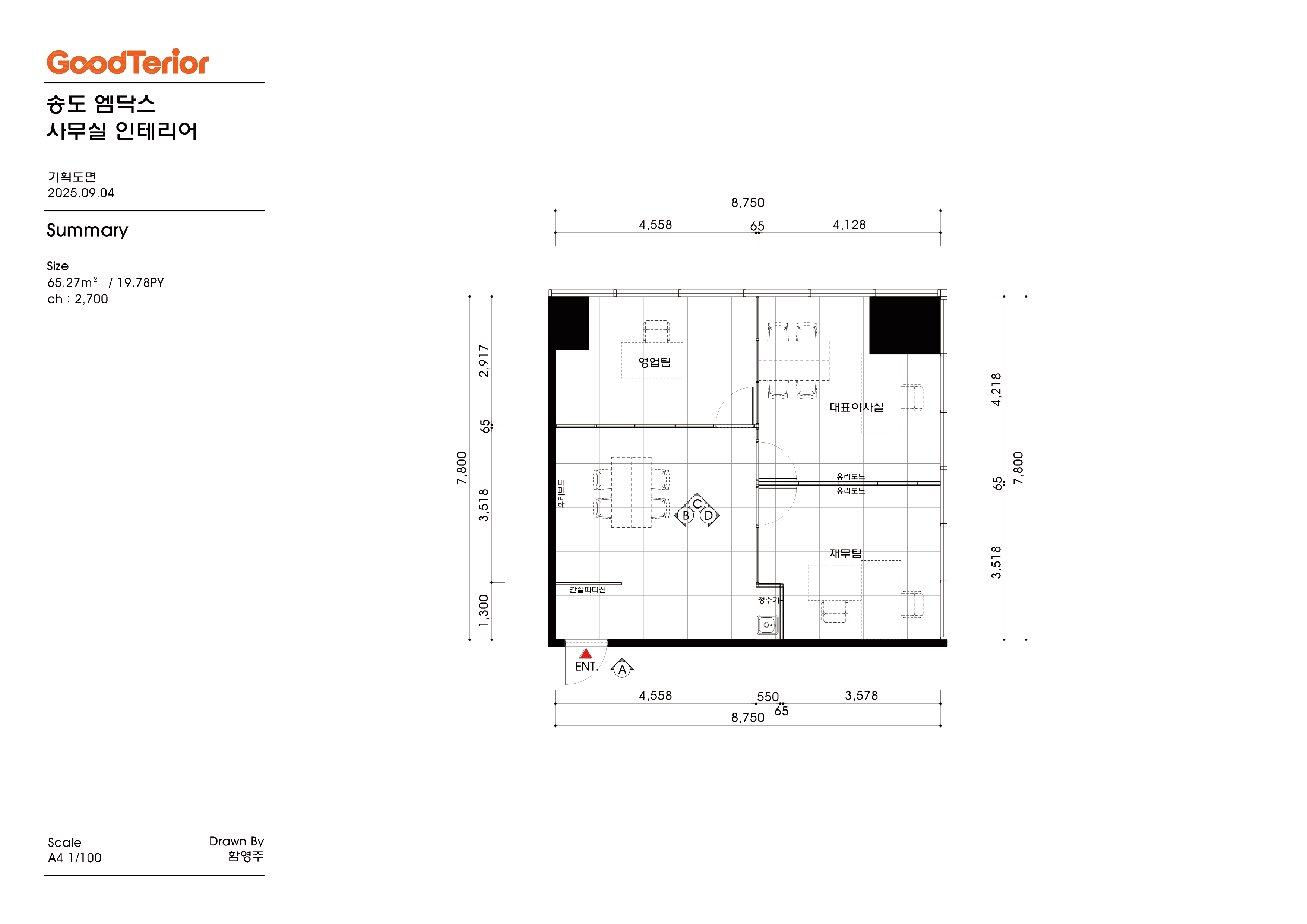
면적: 65.12m² (19.7평)
천장고: 2700mm
천장: 기존 텍스 마감
벽체: 지정 컬러 도장
바닥: 전체 데코타일 마감
칸막이: 대표실 및 회의실 구간 통유리 파티션 시공
탕비실: 기존 급배수 설비 위치에 신설
냉난방기: 기존 설비 재사용
평면도

대표이사실
개인 업무와 소규모 회의를 겸할 수 있도록 넉넉한 공간으로 구성했습니다.
유리 벽을 통해 사무실 전체와 소통하면서도, 독립된 공간에서 업무에 집중할 수 있도록 해드렸습니다.
업무 공간 (영업팀, 재무팀)
영업팀과 재무팀의 공간을 분리하여 각 팀이 업무에 몰입하기 좋은 환경을 만들었습니다.
부서 간의 소음이나 동선이 겹치지 않아 팀원들이 편안하게 일할 수 있답니다.
입구 및 회의 공간
사무실에 들어섰을 때 간살 파티션이 내부를 바로 보여주지 않아 프라이버시를 지켜줍니다.
안쪽으로는 직원들이 자유롭게 소통할 수 있는 회의 공간을 마련하고, 벽에는 유리 보드를 설치했습니다.
그럼 이 공간들이 어떤 모습으로 채워졌는지, 구체적인 디자인을 살펴볼까요?
완공 사진

여기에 기업의 상징색인 그린 컬러로 템바보드 포인트 월을 만들어 생동감을 더해주었어요.
입구에서부터 밝고 긍정적인 브랜드 이미지를 전달할 수 있도록 신경 썼습니다.

천장에는 매입등과 간접조명을 고르게 설치해 복도를 따라 은은한 빛이 흐르도록 연출했습니다. 덕분에 화사하면서도 세련된 분위기의 오피스 공간이 완성되었습니다.

자칫 밋밋하게 느껴질 수 있는 공간에 상큼한 라임 그린 컬러의 템바보드로 포인트를 주어 활기찬 분위기를 더했습니다. 오가는 길에 기분 좋은 에너지를 느낄 수 있도록 신경 썼습니다.

직원분들이 업무 중 잠시 여유를 찾을 수 있도록 실용적이면서도 편안한 공간으로 꾸며드렸습니다.

유리 소재를 사용해서 공간이 답답해 보이지 않고 시각적으로 더 넓고 환하게 느껴진답니다.
전체적으로 화이트와 그레이 컬러를 활용해서 차분하고 집중하기 좋은 모던한 사무실 분위기를 연출했습니다.

한쪽 벽면에는 화이트보드를 넓게 설치했고, 반대편에는 빌트인 선반을 제작해 실용성을 더했습니다.
출입구는 유리 파티션으로 시공해서 공간이 답답해 보이지 않고 시원하게 느껴진답니다.

유리 가벽으로 공간을 분리해서 탁 트인 느낌을 주면서도, 각자의 업무 공간은 확실히 나누어 드렸습니다.
유리에는 그라데이션 시트지를 시공해 외부 시선을 차단하고 업무에 집중하기 좋도록 했습니다.
안쪽에는 간단한 음료를 준비할 수 있는 아담한 탕비실과 화이트 수납장을 만들어 드렸답니다.

유리 하단에는 불투명 시트지를 시공해 각자의 업무 공간은 확실히 보호되도록 세심하게 신경 썼습니다.
전체적으로 화이트와 그레이 톤으로 통일감을 주어 깔끔하고 현대적인 분위기를 완성했습니다.

벽 중앙에는 회사 로고를 넣어 정체성을 분명하게 나타내고, 하단에는 오픈형 벽 선반을 설치해 드렸어요.
책이나 작은 소품을 진열해서 아늑한 분위기를 더할 수 있답니다.
바로 옆에는 직원들을 위한 작은 탕비실을 마련해 실용적으로 공간을 활용하도록 했습니다.

벽면에는 화이트 오픈 선반을 설치해 서류나 비품을 깔끔하게 정리할 수 있도록 했습니다.
안쪽으로는 간단한 음료를 준비할 수 있는 작은 탕비 공간도 마련하여 직원들이 편리하게 이용하도록 했습니다.

그래도 업무에 집중할 수 있는 환경은 중요하니까요, 유리 하단에는 반투명 시트지를 붙여서 개인 공간을 지켜드렸어요.
복도 쪽에는 화이트와 우드로 포인트를 준 아담한 탕비실을 마련해서 직원들이 편하게 쉴 수 있도록 했습니다.

덕분에 시야가 탁 트여 공간이 훨씬 넓고 시원하게 느껴진답니다.
한쪽에는 화이트 톤의 깔끔한 탕비실을 마련했는데요, 우드 소재의 상부장으로 따뜻한 포인트를 주어 아늑한 분위기를 더했습니다.

유리 벽이 공간을 더 넓고 시원하게 보이게 만들어준답니다. 업무에 집중할 수 있도록 파티션 하단에는 불투명 시트지를 시공해 시선을 차단해드렸어요. 화이트 톤을 기본으로 해서 전체적으로 깔끔하고 정돈된 분위기가 느껴집니다.

전체적으로 화이트 톤으로 깔끔하게 마감하고, 한쪽 벽면 전체를 창으로 만들어 공간이 넓어 보이도록 했습니다.
무게감 있는 우드 톤 책상과 브라운 가죽 의자를 배치해 전문적인 분위기를 연출했습니다.
창에는 콤비 블라인드를 설치해서 들어오는 빛의 양을 세심하게 조절할 수 있도록 만들어 드렸습니다.

짙은 우드톤의 책상과 블랙 컬러의 책장을 함께 배치해서 중후하면서도 세련된 분위기를 만들어 드렸습니다.
가구의 톤이 다소 어둡게 느껴질 수 있지만, 창으로 들어오는 빛을 블라인드로 조절하고 한쪽 벽면은 유리 파티션으로 시공해 답답하지 않게 마무리했습니다.
디자이너 후기
이번 엠닥스 프로젝트는 밝고 긍정적인 브랜드 이미지를 담으면서도, 직원들이 쾌적하게 일할 수 있는 사무실을 만드는 데 중점을 두었습니다.
입구에는 기업의 상징색인 그린 컬러로 템바보드 포인트 월을 만들어 방문객에게 활기찬 첫인상을 주도록 했습니다.
또한 답답한 느낌이 들지 않도록 업무 공간을 유리 파티션으로 나누어 시야가 탁 트이도록 해드렸습니다.
동시에 유리 하단에는 불투명 시트지를 시공해 직원들이 업무에 온전히 집중할 수 있는 환경을 조성했습니다.
궁금한 점은 문의 남겨주시면 친절히 안내드리겠습니다 :)
그럼 지금까지 굿테리어 함영주 디자이너였습니다. 다음에 또 다른 프로젝트로 찾아뵙겠습니다!



.webp)


