송파구 사무실 인테리어 시공사례

안녕하세요! 굿테리어 함영주 디자이너입니다 :)
이번 프로젝트는 딱딱한 분위기를 벗어나 따뜻하고 부드러운 느낌을 주는 사무실 인테리어를 원하셨던 고객님을 위한 공간입니다.
전체적으로 화이트와 크림 톤을 바탕으로 우드 가구와 부드러운 곡선 디자인을 더해 아늑하고 편안한 분위기를 연출해드렸습니다.
또한 유리 파티션으로 공간을 분리해 개방감을 확보하고, 라인 조명과 매입등을 활용해 낮은 천장고의 단점을 보완하며 구석구석 환하게 밝혔습니다.
따뜻한 감성이 깃든 오피스 공간, 지금부터 함께 만나보실까요?
👇 함께 보면 좋은 인테리어

고양 28평 사무실 인테리어

가산 58평 사무실 인테리어
.webp)
30평 시크한 무드 사무실 인테리어

가산 퍼블릭 B동 젠어스 사무실

광명 30평 스튜디오 사무실 인테리어

인천서구 법무법인 사무실 인테리어

서초 법률사무소 전용 건물 사무실 인테리어
가산 퍼블릭 에듀프레임 사무실

성북구 전자상거래 사무실

가산 굿베이션 사무실

송파 26평 사무실 인테리어
브런치카페 인테리어

가산 35평 나루코퍼레이션 사무실

홍성 솔트영어학원

가산 35평 사무실 인테리어

높은 층고와 심플함이 돋보이는 사무실 공간
가산 20평 스튜디오 사무실 인테리어

송도 레빗비 마켓팅 사무실 인테리어 시공사례

서초 30평 헬스장 인테리어
상암 30평 영어학원 인테리어

광교 올데이 필라테스
30평 정육식당 인테리어

수원 20평 곱창집 인테리어

철산 46평 미용실 인테리어

구로 생각공장 46평 사무실 인테리어

가산 퍼블릭 사무실 파사드 인테리어

부천 36평 수학학원

마곡 패트릭스와플

광교 41평 사무실 인테리어
현장 체크
- 공사 범위: 사무실 인테리어 전체
- 면적: 88.60m²
- 천장고: 2385mm
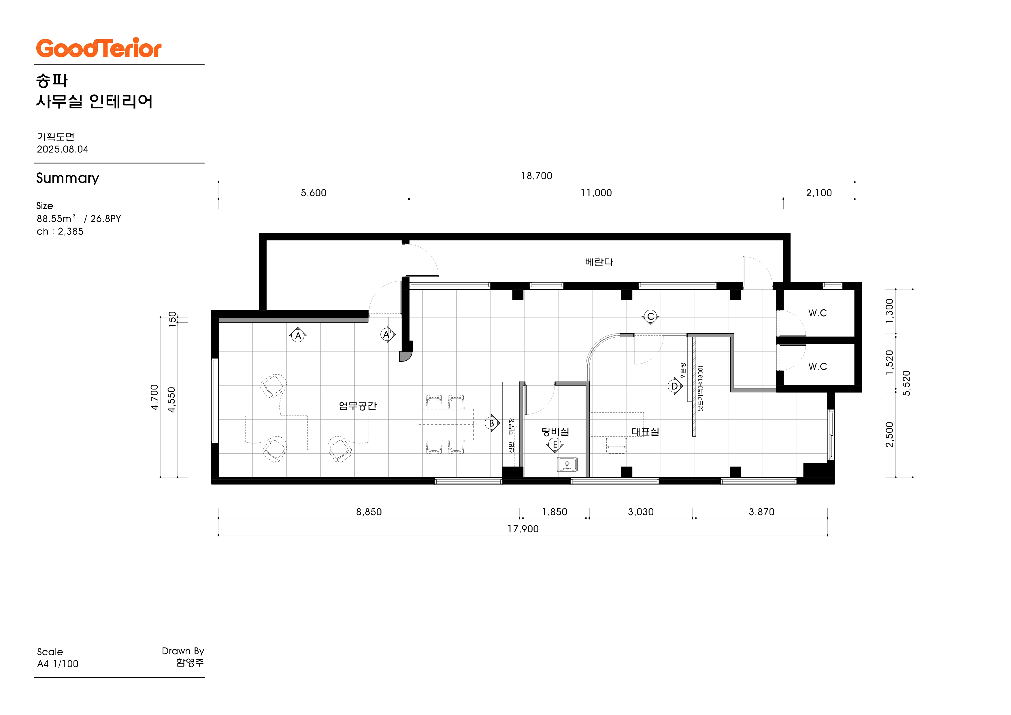
평면도

업무공간
- 창가 쪽으로 책상을 배치해 밝은 자연광을 듬뿍 받으며 기분 좋게 일할 수 있도록 했습니다.
- 벽 없이 탁 트인 구조로 만들어서 직원들끼리 편하게 소통하며 협업하기 좋은 환경을 만들었습니다.
대표실
- 부드러운 곡선 형태의 유리 가벽으로 공간을 분리해서 답답한 느낌 없이 시원해 보입니다.
- 사무 공간 전체를 편하게 둘러볼 수 있으면서도 대표님만의 독립된 공간은 확실히 지켜드렸습니다.
탕비실
- 사무실 중앙에 배치해서 어느 자리에서든 직원들이 쉽게 오가며 이용할 수 있도록 동선을 계획했습니다.
베란다
- 업무 중 잠시 머리를 식히거나 바깥 공기를 쐴 수 있는 기분 좋은 휴식처가 되어줄 거예요.
그럼 이 계획을 바탕으로 완성된 디자인 컨셉을 한번 살펴볼까요?
완공 사진

낮은 천장의 단점을 보완하고자 라인 조명과 매입등을 다양하게 활용해 공간을 환하게 밝혔습니다.
따뜻한 크림색 벽과 우드 가구가 어우러져 딱딱하지 않고 부드러운 분위기를 만들어준답니다.

덕분에 사무용품이나 서류 등을 깔끔하게 보관할 수 있어 정말 실용적입니다. 바닥은 짙은 그레이 색상의 타일로 마감해서 차분한 느낌을 더하고, 실생활에서 관리하기 편하게 했습니다.

덕분에 사무용품이나 개인 물품을 깔끔하게 정리할 수 있답니다. 바닥은 관리가 편한 그레이 타일로 시공해서 모던하고 차분한 느낌을 더했습니다.

전체적으로 부드러운 아이보리 톤으로 마감하고 우드 테이블과 의자를 두어 아늑함을 더했습니다.
천장에는 라인 조명과 매입등을 골고루 배치해 그림자 지는 곳 없이 환하게 만들었습니다.
부드러운 곡선 벽으로 공간에 포인트를 주어 딱딱한 느낌을 줄여드렸습니다.

천장에는 라인 조명과 간접 조명을 설치해 공간이 더 넓어 보이고 그림자 지는 곳 없이 밝도록 신경 썼습니다.
가벽을 세워 입구와 업무 공간을 분리하면서도, 안쪽까지 시선이 자연스럽게 이어지도록 디자인했습니다.

벽면에는 스포트라이트 조명을 설치해 회사의 발자취가 담긴 인증서를 강조해드렸습니다.
천장에는 라인조명을 길게 배치해서 구석구석 어두운 곳 없이 환하게 만들었습니다.

천장 중앙에 라인 조명을 길게 설치해서 어느 자리에서든 그림자 지는 곳 없이 밝은 조도를 확보했습니다.
전체적으로 화이트와 베이지 톤으로 마감해 깔끔하고 편안한 분위기를 연출해 드렸습니다.

여기에 곡선 형태의 우드 테이블과 의자를 배치해 부드럽고 편안한 분위기를 만들어 드렸습니다.
천장에는 라인 조명과 매입등을 고르게 설치해서 그림자 지는 곳 없이 환한 업무 환경이 되도록 했습니다.

자칫 딱딱해 보일 수 있는 공간에 부드러운 곡선 디자인을 더해 한결 편안한 분위기를 연출했습니다.
화이트와 베이지 톤을 바탕으로 원목 가구를 배치해서 깔끔하면서도 아늑함이 느껴지는 오피스입니다.

전체적으로 화이트 톤을 사용하여 깔끔하고 넓어 보이도록 연출했습니다.
자칫 차가워 보일 수 있는 공간에 따뜻한 우드톤의 낮은 수납장을 두어 아늑한 포인트를 더했습니다.
천장에는 라인 조명을 설치해 현대적인 느낌을 주었고, 안쪽으로 이어지는 공간에는 은은한 조명을 사용해 편안한 분위기를 조성했습니다.

유리 파티션으로 공간을 분리해서 답답한 느낌 없이 독립된 업무 공간을 만들었어요.
천장에는 라인 조명을 길게 설치하여 그림자 지는 곳 없이 전체적으로 밝은 환경을 조성했습니다.
자칫 차가워 보일 수 있는 공간에 우드 톤의 가구와 패턴 러그로 아늑하고 편안한 포인트를 더했습니다.

유리 파티션으로 공간을 분리해 시각적으로 탁 트인 느낌을 주면서도 업무 공간은 확실하게 나누어드렸습니다. 덕분에 답답함 없이 개방감이 느껴진답니다. 천장은 그대로 노출시키고 라인 조명을 설치해서 실용적이면서도 천장이 높아 보이는 효과를 주었습니다.

덕분에 공간이 더 넓어 보이고 답답하지 않답니다. 전체적으로 아이보리와 베이지 톤을 사용하고 우드 가구를 배치해 따뜻하고 편안한 업무 환경을 조성했습니다.

부드러운 곡선 디자인의 유리 가벽으로 공간을 분리해 드렸습니다.
이렇게 하니 공간은 나누어지면서도 탁 트인 느낌을 주어 답답하지 않습니다.
전체적으로 아이보리와 우드톤을 사용해서 따뜻하고 편안한 업무 공간을 완성했습니다.

직선으로 공간을 나누는 대신 부드러운 곡선을 사용해 딱딱할 수 있는 사무실 분위기를 피하고 싶었습니다.
유리 파티션 덕분에 공간이 분리되면서도 시각적으로는 탁 트여 보이고, 복도에 배치한 원목 가구와 어우러져 따뜻하고 아늑한 느낌을 준답니다.

전체적으로는 따뜻한 크림색과 우드톤 가구를 사용해서 직원들이 편안하게 쉴 수 있는 공간을 만들어드렸습니다.
천장의 라인조명과 테이블 위 매입등은 공간을 전체적으로 밝히면서도 눈이 부시지 않도록 도와줍니다.

인포데스크 뒤쪽 벽면에는 따뜻한 우드 톤 아트월로 포인트를 주어 아늑함을 더했고요.
천장에는 심플한 라인조명을 길게 설치해서 공간이 더 넓고 현대적으로 느껴지도록 연출했답니다.

부드러운 곡선 벽과 라운드 형태의 유리 파티션을 활용해 공간을 분리하여 시야가 답답하지 않고 개방감이 느껴집니다.
천장에는 긴 라인 조명을 설치해 전체적으로 환하게 만들고, 벽면을 따라서는 매입등을 두어 은은한 포인트를 주었습니다.
바닥은 핑크 베이지 톤으로 마감하여 공간에 아늑함을 더해드렸습니다.
디자이너 후기
이번 송파구 사무실 프로젝트는 딱딱한 분위기에서 벗어나 직원들이 편안하게 일할 수 있는 따뜻한 공간을 만들고 싶다는 고객님의 요청으로 시작되었습니다.
이를 위해 전체적으로 부드러운 곡선 디자인과 따뜻한 우드 소재를 곳곳에 활용하여 아늑하고 부드러운 분위기를 연출했습니다.
자칫 답답해 보일 수 있는 낮은 천장은 라인 조명과 유리 파티션을 계획해 시각적으로 넓고 환하게 느껴지도록 세심하게 신경 썼습니다.
덕분에 기능적인 공간 분리와 개방감을 모두 갖춘 실용적이고 편안한 오피스가 완성될 수 있었습니다.
궁금한 점은 문의 남겨주시면 친절히 안내드리겠습니다 :)
그럼 지금까지 굿테리어 함영주 디자이너였습니다. 다음에 또 다른 프로젝트로 찾아뵙겠습니다!



.webp)


