광교 41평 사무실 인테리어
곡선과 조명이 포인트인 공간
안녕하세요! 굿테리어 함영주 디자이너입니다 :)
이번에 소개해 드릴 곳은 직원들이 편안하고 자유로운 분위기 속에서 일할 수 있기를 바라셨던 광교의 40평대 사무실 인테리어 현장이에요.
전체적으로 깨끗한 화이트 톤을 바탕으로 따뜻한 우드 소재와 부드러운 곡선 디자인을 더해, 전문적이면서도 아늑한 분위기를 만들고자 했습니다.
특히 유리 파티션을 적극적으로 활용해서 각 공간의 역할은 명확히 구분하면서도 답답하지 않고 시원하게 탁 트인 느낌을 주는 오피스 인테리어를 완성했답니다.
그럼 지금부터 저희와 함께 멋지게 변신한 공간으로 떠나보실까요?
👇 함께 보면 좋은 인테리어

광명 GIDC 쇼핑몰 사무실

송도 40평 SI 업체 사무실 인테리어

가산 굿베이션 사무실

가산 123평 대형 사무실 인테리어

관악구 30평 사무실 인테리어
.webp)
30평 시크한 무드 사무실 인테리어

금천 11평 휴대폰매장 인테리어

송도 윈코어 사무실 인테리어 시공사례

영등포 70평 IT 회사 오피스 인테리어

가산 퍼블릭 B동 젠어스 사무실

광명 60평 사무실 인테리어

동탄 36평 사무실 쇼룸 인테리어

가산 57평 스타밸리 사무실

송파 건물 로비 1F 인테리어

강동구 36평 영어전문학원 인테리어

광명 운산자동차 40평대 사무실 인테리어 시공사례

42평 피부과 인테리어

봉담 33평 메타영수학원

마곡 42평 소아치과 인테리어

오산 지젤 쇼핑몰 사무실 인테리어 시공사례
분당서현 삼성영어학원
마곡 바이브먼트&보울랩스 헬스장

광교 47평 요가 학원 확장공사 인테리어

서초 47평 헬스장 인테리어

부천 36평 수학학원

마곡 패트릭스와플

송도 스토리움 멤버십 어린이 영어 도서관

양천구 40평 영어학원 인테리어

마곡 82평 공유오피스 인테리어

인천서구 법무법인 사무실 인테리어
현장 체크
- 면적: 135.54m² (41평)
- 천장고: 2600mm
- 공간 유형: 상업공간 (사무실)
- 위치: 광교
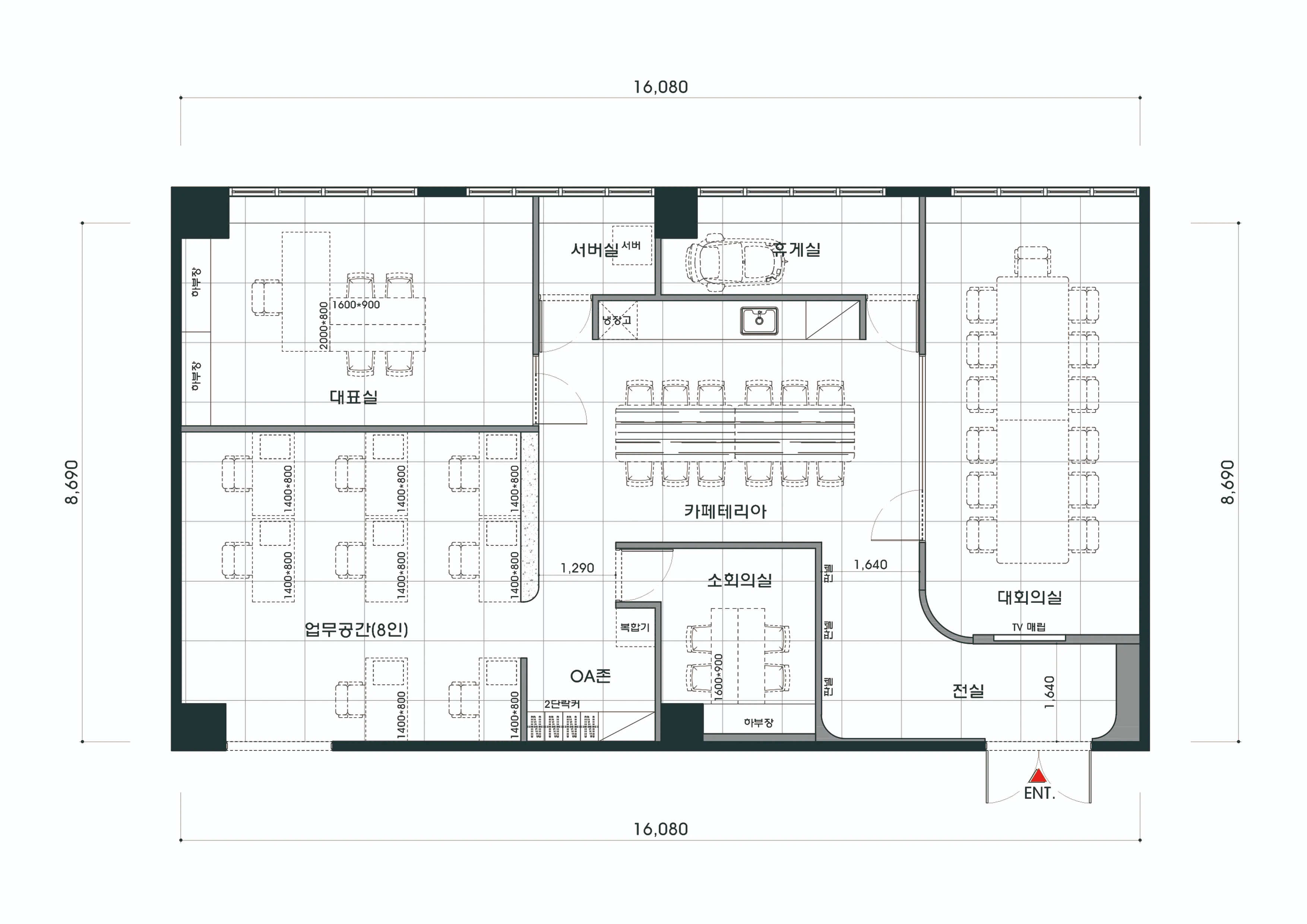
평면도

업무공간
- 팀원들이 함께 일하는 곳인 만큼 답답하지 않도록 개방감 있게 구성했어요. 창가에 책상을 배치해서 자연광을 받으며 기분 좋게 일할 수 있도록 했습니다.
- 책상 사이에는 싱그러운 플랜트 박스를 두어 공간에 생기를 더하고, 벽 쪽 붙박이 수납장으로 정리를 쉽게 만들었습니다.
카페테리아
- 사무실 중심에 자리해 직원들이 편하게 모여 소통하는 공간이에요. 긴 테이블을 두어 식사는 물론 가벼운 회의나 티타임을 즐기기에도 좋답니다.
- 업무 공간과 회의실 사이에 있어서 동선이 편리하고, 누구나 자유롭게 이용할 수 있도록 싱크대와 넉넉한 수납 공간도 마련했어요.
대회의실
- 사무실의 첫인상을 좌우하는 공간으로, 부드러운 곡선 유리 벽으로 시공해 공간이 더 넓어 보이고 세련된 느낌을 주도록 연출했습니다.
- 외부 손님을 맞이하거나 중요한 회의를 할 때를 생각해 차분하면서도 무게감 있는 분위기를 만들었고, 필요시 블라인드로 개인 공간을 지킬 수 있습니다.
대표실
- 업무와 미팅을 함께 할 수 있도록 공간을 효율적으로 나눴어요. 한쪽에는 업무용 책상을, 다른 한쪽에는 미팅 테이블을 두어 손님을 맞이하기 좋습니다.
- 창가에 책상을 배치해 탁 트인 느낌을 주었고, 안쪽에는 잠시 쉴 수 있도록 아늑한 개인 휴게실을 연결해 드렸습니다.
자, 그럼 이 공간들이 어떤 디자인으로 완성되었는지 함께 구경해볼까요?
디자인

전체적으로 화이트 톤으로 마감해 깔끔하고 환한 느낌을 주었습니다.
벽면에는 심플한 블랙 로고에 스포트라이트 조명을 비춰 시선이 머물도록 했습니다.

회사 로고 사인에는 은은한 간접 조명을 더해 전문적인 이미지를 강조했습니다.

부드러운 곡선으로 처리된 벽면이 정말 멋스럽지 않나요?
덕분에 방문하시는 분들께 한층 부드러운 첫인상을 드릴 수 있습니다.

한쪽 벽면에는 트로피와 상패를 진열할 수 있는 매립 선반을 만들고, 하단에는 플랜테리어로 포인트를 주어 생기를 더했습니다.

한쪽 벽에는 회사의 정체성을 보여주는 사인을, 맞은편에는 싱그러운 식물을 배치하여 전문성과 부드러움의 균형을 맞추었습니다.

탕비 공간 벽면은 차분한 그레이 타일로 마감해서 실용적이면서도 깔끔해 보입니다.
업무 공간과는 유리 파티션으로 분리해서, 공간은 나누되 답답해 보이지 않도록 했습니다.

자칫 차가워 보일 수 있는 분위기를 따뜻한 우드 소재의 긴 테이블과 도어가 부드럽게 중화시켜 줍니다.

반투명 그라데이션 시트지를 붙인 유리 파티션으로 공간을 분리해, 답답한 느낌은 줄이고 프라이버시는 지킬 수 있도록 했습니다.

가운데에 길게 뻗은 테이블을 두어 여러 명이 함께 식사하거나 티타임을 즐길 수 있도록 했습니다.

천장에는 매입등을 촘촘하게 설치해 그림자 지는 곳 없이 전체적으로 밝은 조도를 확보했습니다.

책상과 의자 역시 화이트 톤으로 통일감을 주어 시선이 분산되지 않고 깔끔해 보인답니다.

화이트 컬러의 벽과 책상이 공간을 환하게 만들어주고, 바닥은 차분한 그레이 톤으로 안정감을 더했습니다.

부드러운 아치 형태의 우드 아트월과 코너의 템바보드로 입체감을 살렸습니다.
책상 위로 떨어지는 골드 컬러의 유니크한 펜던트 조명이 정말 멋스럽습니다.

그래서 벽면 전체를 밝은 우드 톤으로 마감해 아늑함을 더했습니다.
커다란 창으로 햇살이 가득 들어와서 공간이 한결 화사하고 편안하게 느껴집니다.

벽은 화이트와 그레이 투톤으로 마감해서 안정감을 주었고, 천장에는 라인조명을 길게 설치해서 전체적으로 밝고 환한 분위기를 만들었습니다.
디자이너 후기
이번 광교 사무실 프로젝트는 방문객에게는 신뢰감을 주고 직원들에게는 편안함을 주는 공간을 원하셨던 고객님의 의견을 적극 반영했어요.
전체적으로 깨끗한 화이트 톤을 바탕으로 하면서, 공간 곳곳에 따뜻한 우드 소재와 플랜테리어를 더해 딱딱하지 않고 부드러운 분위기를 만들고자 했습니다.
또한, 유리 파티션을 활용해 공간이 답답해 보이지 않도록 하면서도, 라인조명과 간접조명을 계획해 세련되고 전문적인 이미지를 완성했답니다.
덕분에 업무 효율은 높이면서도 머무는 내내 기분 좋은 에너지를 느낄 수 있는 사무실 인테리어가 완성되었어요.
궁금한 점은 문의 남겨주시면 친절히 안내드리겠습니다 :)
그럼 지금까지 굿테리어 함영주 디자이너였습니다. 다음에 또 다른 프로젝트로 찾아뵙겠습니다!






