광교 올데이 요가 & 필라테스 인테리어 시공사례

안녕하세요, 굿테리어 함영주 디자이너입니다 :)
이번에 소개해 드릴 곳은 광교에 위치한 요가 & 필라테스 스튜디오입니다.
몸과 마음에 집중하는 공간인 만큼, 전체적으로 깨끗한 화이트 톤을 바탕으로 마음이 편안해지는 딥그린 컬러로 포인트를 주어 싱그러운 분위기를 연출해 드렸습니다.
자칫 차갑게 느껴질 수 있는 공간에 부드러운 곡선의 아치 디자인을 곳곳에 더해 우아하고 따뜻한 느낌을 살렸고, 은은하게 퍼지는 따뜻한 색감의 간접조명으로 방문하시는 모든 분이 들어서는 순간부터 편안함을 느끼실 수 있도록 세심하게 신경 썼답니다.
그럼 지금부터 기분 좋은 에너지가 가득한 공간으로 함께 떠나볼까요?
👇 함께 보면 좋은 인테리어

안양 21평 요가&필라테스 인테리어

광교 47평 요가 학원 확장공사 인테리어

안양 디:힐 필라테스 인테리어 시공사례

수원 30평 복층 헬스장 인테리어

서초 30평 헬스장 인테리어

서초 47평 헬스장 인테리어

30평 여성전용 PT샵 인테리어

부천 35평 영어학원 인테리어

부천 23평 음악학원 인테리어

파주 25평 영어학원 인테리어

봉담 16평 영어교습소 인테리어

광교 20평 필라테스 인테리어

관악구 23평 필라테스 인테리어

광교 올데이 필라테스
10평 의류매장 인테리어

강남 40평 세무법인 인테리어

가산 44평 아스크타워 사무실 인테리어

송도 40평 SI 업체 사무실 인테리어

관악구 40평대 리드인 독서논술 학원

광명 41평 휴라이트 쇼룸 부분 리모델링

안산 40평 반도체 회사 사무실 인테리어

평택 35평 사무실 인테리어

김포 장기동 20평대 학원 인테리어

수원 영통 90평대 대형학원 인테리어

철산 21평 영수학원 인테리어
현장 체크
- 면적: 156.03m²
- 천장고: 2700mm
- 기존 철거 범위: 100mm 벽돌벽을 제외한 내부 전체 철거
- 바닥 공사: 기존 바닥 샌딩 작업 후 셀프 레벨링 시공
- 전기 공사: 배선 정리, 간선 추가, 콘센트 및 스위치 재배치
- 천장 공사: 메인홀은 노출 천장 위 도장, 나머지 공간은 덴조(가설 천장) 시공
- 도장 마감: 전체 수성페인트 사용
- 조명 공사: 시스템 라인 조명 및 다운라이트 설치 (레일 조명 제외)
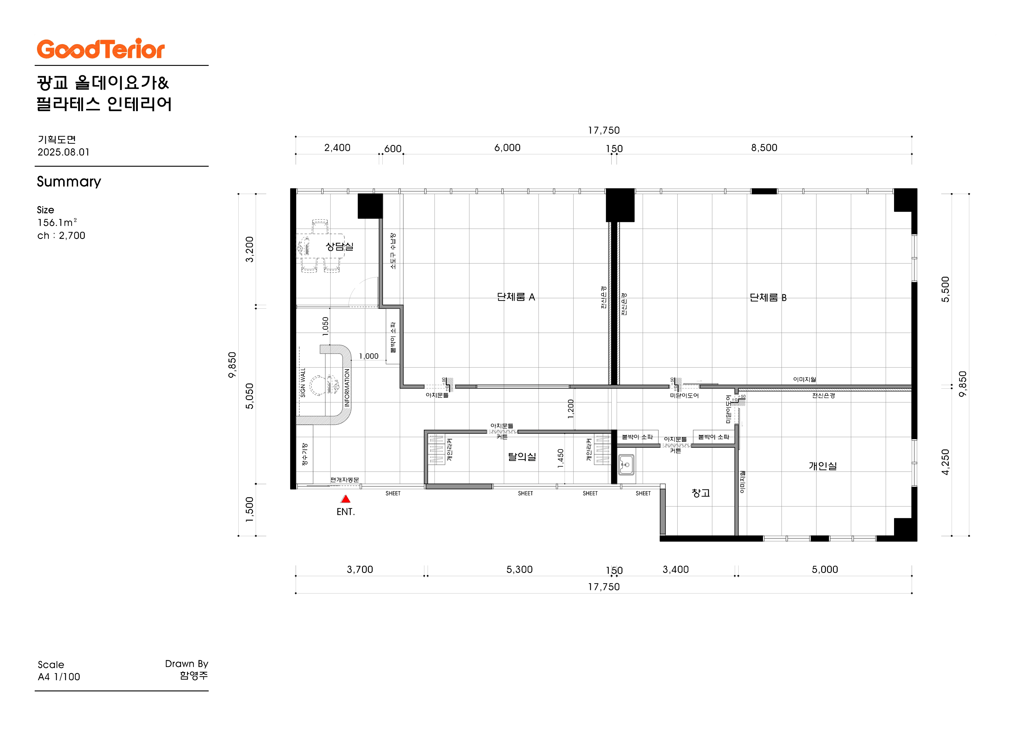
평면도
_복사.webp)
입구와 인포데스크
- 부드러운 곡선 디자인의 인포데스크를 두어 방문하는 분들을 편안하게 맞이하도록 했습니다.
- 데스크 뒤편으로는 브랜드 로고를 넣을 사인월을 만들어 첫인상에서부터 전문적인 이미지를 느낄 수 있도록 계획했습니다.
운동 공간
- 단체룸과 개인 레슨실을 나누어 수업 종류에 따라 공간을 알맞게 사용할 수 있도록 배치했습니다.
- 두 개의 단체룸은 기둥을 중심으로 나누어, 넓은 공간을 효율적으로 활용하면서 회원들이 수업에 집중하기 좋게 만들었습니다.
상담실
- 처음 방문하는 분들이 바로 안내받을 수 있도록 입구와 가장 가까운 곳에 상담실을 마련했습니다.
- 답답하게 느껴지지 않도록 유리 벽체를 세워 공간이 더 넓어 보이게 하고, 상담 시에는 편안한 분위기를 만들어 드렸습니다.
탈의실
- 모든 운동 공간의 중심에 탈의실을 두어 어느 강의실로든 이동하기 편하게 동선을 정리했습니다.
- 내부에는 개인 락커를 충분히 마련해서 운동 전후에 불편함 없이 준비할 수 있도록 세심하게 신경 썼습니다.
이렇게 공간을 효율적으로 구성했으니, 이제는 어떤 디자인 컨셉으로 완성되었는지 함께 살펴볼까요?
완공 사진

아트월 뒤쪽으로 은은하게 퍼져 나오는 따뜻한 색감의 간접조명이 공간을 부드럽고 편안하게 감싸주는 느낌이에요.
중앙에는 블랙 컬러 로고를 배치해서 깔끔하고 세련된 첫인상을 완성했습니다.

깨끗한 화이트 톤을 바탕으로 싱그러운 그린 컬러 포인트 벽을 만들어 시선을 끌고 생기를 더해주었습니다.
아기자기한 디자인의 포인트 벽 조명은 공간에 따뜻함과 아늑한 분위기를 연출해 준답니다.

전체적으로 깨끗한 화이트 톤을 사용하여 밝고 환한 느낌을 주었고, 벽면에는 원형 구조물과 브랜드 로고를 설치했습니다.
구조물 뒤쪽으로는 은은한 간접조명을 더해 공간이 더욱 따뜻하고 아늑하게 느껴지도록 했습니다.
카운터 옆에는 실용적으로 사용할 수 있는 맞춤 신발장을 배치해 드렸습니다.

부드러운 곡선이 돋보이는 아치형 출입구는 공간에 우아한 느낌을 더해준답니다.
복도 한편에는 천장과 색을 맞춘 그린 컬러의 탑볼 세면대를 두어 실용적이면서도 통일감 있는 디자인을 완성했습니다.

여기에 무광 블랙 수전을 조합해 모던한 감각을 살렸습니다.
벽면에 시공한 아치 형태의 간접조명은 공간을 한층 더 부드럽고 고급스럽게 만들어준답니다.

전체적으로 화이트 톤과 밝은 우드 바닥을 사용하여 깨끗하고 편안한 분위기를 연출했습니다.
부드러운 곡선 형태의 인포데스크와 은은한 간접 조명이 들어간 원형 로고가 따뜻하게 방문객을 맞이해준답니다.
천장은 배관을 그대로 살린 노출 디자인에 싱그러운 그린 컬러로 포인트를 주어 활기찬 느낌을 더했습니다.

부드러운 곡선으로 디자인해서 방문하시는 분들께 편안하고 환영하는 느낌을 드리고 싶었어요.
상판은 은은한 대리석 패턴으로 마감해 고급스러움을 더하고, 깨끗한 흰색 바탕에 검은색 레터링으로 포인트를 주어 깔끔한 첫인상을 만들어줍니다.

화이트 컬러 벽체에 부드러운 아치 형태로 디자인 포인트를 주고 그 라인을 따라 따뜻한 색감의 간접 조명을 설치해드렸습니다.
덕분에 공간이 한결 아늑하고 부드럽게 느껴집니다.
상담실 문은 유리로 시공하여 탁 트여 보이게 하면서 그라데이션 시트지를 붙여 개인적인 공간은 지켜드렸습니다.

개인적인 공간인 만큼, 불투명 그라데이션 시트지를 붙인 유리문으로 공간을 분리해드렸어요.
내부가 직접 보이지는 않으면서도 답답한 느낌이 들지 않도록 신경 썼답니다.
깔끔한 화이트 벽에 블랙 손잡이로 포인트를 주어 모던한 느낌을 더했습니다.

전체적으로 화이트 톤으로 꾸며 깨끗하고 정돈된 분위기를 연출했습니다.
창가에는 쉬폰 커튼을 달아 부드러운 자연광이 공간을 은은하게 채우도록 했습니다.
방문하시는 분들이 편안한 마음으로 상담받으실 수 있도록 신경 썼습니다.

부드러운 곡선이 돋보이는 아치형 게이트를 각 룸의 입구로 설치해서 우아한 느낌을 더해주었습니다.
화이트와 그린의 깔끔한 색상 대비로 운동 공간에 대한 기대감을 높여준답니다.

거울을 통해 동작을 꼼꼼히 확인하며 운동할 수 있고, 공간이 훨씬 넓어 보이는 효과도 있답니다.
화사한 화이트 벽과 밝은 우드 플로어링을 배경으로, 파스텔톤의 플라잉요가 해먹이 생기를 더해줍니다.

깨끗한 화이트 벽면과 대비되는 딥그린 포인트 컬러가 공간에 싱그러운 활력을 불어넣어 준답니다.
여기에 심플한 블랙 레터링으로 룸 사인을 제작해 모던한 느낌을 더해드렸어요.

한쪽 벽면 전체에는 대형 거울을 시공하여 공간이 두 배로 넓어 보이게 하고, 회원님들이 동작을 세심하게 확인할 수 있도록 했습니다.
천장은 노출시킨 후 그린 컬러로 포인트를 주었으며, 전체적으로 라인 조명을 설치해 그림자 지는 곳 없이 환한 공간을 완성했습니다.

전체적으로 화이트톤을 바탕으로 하여 공간이 더욱 넓고 화사하게 느껴지도록 했어요.
한쪽 벽면 전체를 대형 거울로 시공하여 수련에 집중하기 좋고, 공간감도 한층 살려주었답니다.
부드러운 곡선의 아치형 출입구는 모던한 공간에 우아함을 더해주는 디자인 포인트입니다.

전체적으로 화이트 컬러와 밝은 우드톤 바닥을 사용해 몸과 마음에 집중할 수 있는 차분한 분위기를 만들었습니다.
한쪽 벽면에는 짙은 그린 컬러로 브랜드 로고를 넣어 포인트를 주었고, 탈의실로 향하는 아치형 도어 디자인으로 부드러움을 더했습니다.

벽면에는 전체 거울을 시공해 자세를 꼼꼼하게 확인할 수 있도록 해드렸습니다.
천장은 노출 마감 후 짙은 녹색으로 포인트를 주어 자연 속처럼 편안한 느낌을 주고자 했습니다.
거울 하단의 간접조명과 천장의 라인조명이 공간을 부드럽게 밝혀주어 차분한 분위기를 만들어줍니다.

로고 옆으로 흐르는 따뜻한 간접조명이 공간을 부드럽게 감싸주어 들어서는 순간부터 편안함을 느끼실 수 있답니다.
복도를 따라 이어지는 부드러운 곡선의 아치형 도어들은 통일감을 주면서 세련된 분위기를 연출합니다.

화이트 톤의 깔끔한 벽체에 딥그린 컬러의 아치형 도어를 시공해 부드러우면서도 세련된 포인트를 주었습니다.
문을 열고 들어설 때마다 차분하고 편안한 기분으로 운동에 집중할 수 있도록 해드렸습니다.

자칫 단조로울 수 있는 복도에 아치형 입구와 부드러운 곡선 디자인을 적용해 부드럽고 유연한 분위기를 만들었어요.
운동 전후로 매무새를 다듬을 수 있는 파우더 공간을 지나면 저 멀리 인포데스크가 보인답니다.

화이트 톤의 깔끔한 공간에 블루그린 컬러의 락커로 산뜻한 포인트를 주었어요.
벽에는 큰 거울과 선반을 함께 설치해서 소지품을 두거나 옷매무새를 다듬기 편리하게 만들어드렸습니다.

천장과 입구 안쪽에는 싱그러운 그린 컬러를 사용해 생동감을 더하고, 시선이 자연스럽게 공간 안쪽으로 향하도록 했어요.
복도 끝에는 거울을 배치해 공간이 더욱 넓어 보이는 효과를 주었답니다.

천장은 노출 마감 후 딥그린 컬러로 포인트를 주어 생동감을 더했고, 라인조명으로 공간 전체를 고르게 비춰준답니다.
창가에는 쉬폰 커튼을 달아 부드러운 분위기를 연출하고 밝은 톤의 바닥재로 따뜻하고 편안하게 마무리했습니다.

그래서 운동기구를 종류별로 깔끔하게 보관할 수 있는 수납장을 맞춤 제작해 드렸어요.
요가 매트와 폼롤러, 짐볼 등 기구의 크기와 형태에 딱 맞게 공간을 나누어서
누구나 쉽고 편리하게 기구를 사용하고 정리할 수 있도록 신경 썼습니다.

천장은 구조물을 그대로 노출시키고 싱그러운 그린 컬러로 마감해 활기찬 분위기를 더해주었습니다.
벽면에는 대형 거울을 시공해 동작을 확인하며 운동에 집중하기 좋고, 공간이 훨씬 넓어 보이는 효과를 준답니다.
거울 아래 은은한 간접 조명과 쉬폰 커튼의 부드러운 빛이 어우러져 편안하게 운동을 즐길 수 있도록 연출했습니다.

다양한 운동 소도구들은 화이트 맞춤 수납장을 제작해 깔끔하게 정리할 수 있도록 공간을 마련해드렸습니다.

외부 시선을 부드럽게 가려주면서도 답답해 보이지 않도록 반투명 시트지를 붙인 유리 자동문을 설치했습니다.
따뜻한 색감의 벽부등과 포인트 조명이 더해져 들어서는 순간부터 편안함을 느낄 수 있도록 신경 썼습니다.
디자이너 후기
이번 광교 요가&필라테스 프로젝트는 편안하고 싱그러운 분위기에서 운동에 집중할 수 있는 공간을 만들어 달라는 요청이 있었습니다.
이를 위해 깨끗한 화이트 톤을 바탕으로 브랜드의 시그니처인 딥그린 컬러와 부드러운 아치 형태를 디자인 포인트로 활용해드렸습니다.
또한 공간 곳곳에 따뜻한 색감의 간접조명을 계획하여 몸과 마음의 안정이 필요한 수련 공간에 차분한 분위기를 더했습니다.
덕분에 들어서는 순간부터 기분 좋은 에너지를 느끼며 온전히 나에게 집중할 수 있는 공간이 완성되었습니다.
궁금한 점은 문의 남겨주시면 친절히 안내드리겠습니다 :)
그럼 지금까지 굿테리어 함영주 디자이너였습니다. 다음에 또 다른 프로젝트로 찾아뵙겠습니다!

.webp)




