
안녕하세요! 굿테리어 홍희지 디자이너입니다 :)
이번에 소개해 드릴 프로젝트는 성남에 위치한 54평 규모의 전문 바리스타 학원 인테리어입니다.
고객님께서는 실습에 집중할 수 있는 전문적인 환경이면서도 수강생들이 편안하게 머물 수 있는 따뜻한 분위기를 원하셨습니다.
이러한 요청에 맞춰 우드 소재와 부드러운 아치 디자인을 중심으로 공간을 계획하고, 샌드 텍스처와 골드로 포인트를 준 안내데스크로 고급스러운 브랜드 이미지를 표현해드렸습니다.
전문성과 아늑함이 조화롭게 어우러진 공간으로 만들기 위해 디테일 하나하나 정성을 담아 완성했답니다.
자, 그럼 지금부터 저와 함께 이 멋진 공간을 둘러보실까요?
현장 체크
```html
- 면적: 54평 (약 179m²)
- 리셉션 데스크 마감: 샌드 텍스처 대리석, 우드, 골드 띠 조합 시공
- 메인 실습실 벽체: 외부 시인성 확보를 위한 대형 유리창 설치
- 상담실: 공간 구획을 위한 유리 파티션 사용
- 실내 도어: 모든 실의 문을 아치형 창 디자인으로 통일
- 지정 조명: 리셉션 상부 및 실습실 싱크 상부에 팬던트 조명 설치
- 대표실 마감: 어두운 컬러의 우드 마감재 사용
- 벽체 시공: 입구 아치형 우드 패널 및 매립형 유리 게시판 설치
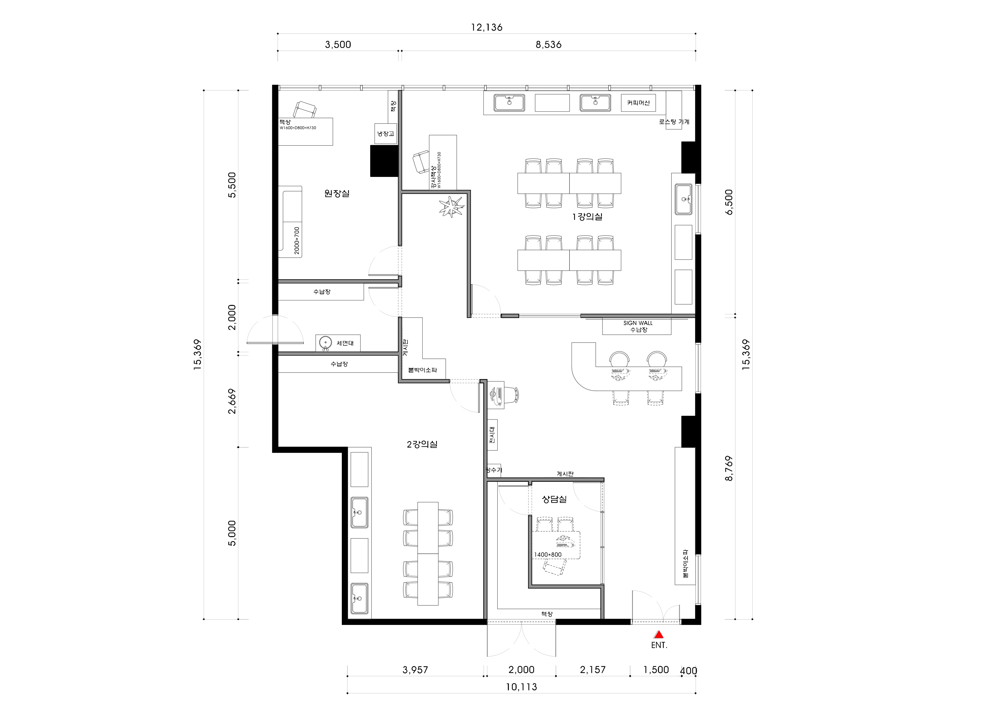
평면도

**리셉션과 대기 공간**
샌드 텍스처의 **대리석**과 **우드**, **골드 띠**를 함께 사용해 학원의 첫인상을 고급스럽게 만들어드렸습니다.
방문객이 처음 마주하는 대기 공간에는 **아치형 나무판**과 **조명**으로 포인트를 주어 따뜻함이 느껴지도록 연출했습니다.
**강의실**
가장 넓은 **1강의실**은 복도에서도 내부가 잘 보이도록 **큰 창**을 내어드렸어요. 이렇게 하면 공간이 더 넓어 보이고 생동감도 느껴진답니다.
수강생들이 실습에 집중할 수 있도록 커피 머신과 싱크대 위쪽으로 **팬던트 조명**을 달아 따뜻하고 아늑한 분위기를 더했습니다.
**상담실**
**유리 파티션**을 사용해 공간이 답답해 보이지 않으면서도, 상담에 집중할 수 있는 환경을 만들어드렸습니다.
벽에는 감각적인 **액자**와 **팬던트 조명**을 더해, 방문하는 분들이 편안한 기분을 느낄 수 있도록 세심하게 신경 썼습니다.
**원장실**
원장님이 편안하게 업무를 보실 수 있도록 다른 공간보다 톤이 낮은 **어두운 컬러의 우드**로 마감해 차분한 분위기를 연출했습니다.
공간 중앙의 기둥을 기준으로 안쪽에는 냉장고를, 바깥쪽에는 책장을 두어 잡다한 물건은 가리고 수납공간은 넉넉하게 쓸 수 있도록 구성했습니다.
이렇게 공간을 짜임새 있게 구성해 보았는데요, 이어서 전체적인 디자인 컨셉도 소개해 드릴게요.
디자인 컨셉



"따뜻한 우드와 골드로 완성한 전문 공간"
바리스타 학원의 전문성을 보여주면서 수강생들이 편안함을 느끼도록 따뜻한 공간을 만드는 데 집중했습니다.
전체적으로 따뜻한 우드 톤을 기본으로 인포데스크에는 샌드 텍스처 대리석과 골드 띠를 더하고, 모든 문에 아치형 창을 적용해 부드러운 통일감을 주었습니다.
실습 위주 동선을 효율적으로 구성하고 상담실은 유리 파티션으로 공간을 나누어, 탁 트인 느낌과 프라이버시를 모두 지킬 수 있도록 했습니다.
그럼, 전체적인 컨셉을 확인하셨으니 이제 각 공간을 자세히 둘러보실까요?
디자인

따뜻한 분위기의 바리스타 학원을 원하셨던 고객님의 요청에 맞춰 완성된 인포데스크 공간입니다. 샌드 텍스처 마감의 부드러운 곡선형 카운터에 골드 포인트를 더해 고급스러움을 살렸습니다.
천장에서 내려오는 원형 펜던트 조명이 공간의 전체적인 분위기를 아늑하게 만들어 줍니다.
천장에서 내려오는 원형 펜던트 조명이 공간의 전체적인 분위기를 아늑하게 만들어 줍니다.

바리스타 학원에 들어서면 가장 먼저 마주하는 공간입니다. 방문객이 편안하게 머물 수 있도록 입구에 대기 공간을 마련했습니다.
벽면은 아치형 우드 패널과 간접 조명으로 마감해 따뜻하고 부드러운 첫인상을 주도록 연출했습니다.
벽면은 아치형 우드 패널과 간접 조명으로 마감해 따뜻하고 부드러운 첫인상을 주도록 연출했습니다.

방문객들을 위한 대기 공간입니다. 부드러운 곡선의 우드 아트월과 붙박이 의자를 시공해 따뜻하고 편안한 분위기를 연출했습니다.
자칫 밋밋할 수 있는 벽면에는 동그란 벽 조명으로 포인트를 주어 공간을 더욱 아늑하게 만들었습니다.
자칫 밋밋할 수 있는 벽면에는 동그란 벽 조명으로 포인트를 주어 공간을 더욱 아늑하게 만들었습니다.

아이보리와 우드 톤을 기본으로 하여 부드럽고 아늑한 느낌으로 연출한 공간입니다.
상담실은 반투명 유리 파티션으로 공간을 분리해 답답함을 줄였고, 문에는 아치형 창을 내어 디자인에 통일감을 주었습니다.
상담실은 반투명 유리 파티션으로 공간을 분리해 답답함을 줄였고, 문에는 아치형 창을 내어 디자인에 통일감을 주었습니다.

수강생분들이 편안하게 상담받으실 수 있는 아늑한 상담실입니다. 유리 파티션으로 공간을 나누어 개방감을 주면서도 독립적인 공간을 확보했습니다.
벽면에는 감각적인 펜던트 조명과 액자를 더해 따뜻하고 세련된 분위기를 연출했습니다.
벽면에는 감각적인 펜던트 조명과 액자를 더해 따뜻하고 세련된 분위기를 연출했습니다.

수강생분들이 편히 앉아 쉴 수 있도록 입구에 마련된 대기 공간입니다.
ㄱ자 형태의 붙박이 벤치를 제작해 공간 효율성을 높이고, 벽에는 공지사항을 깔끔하게 붙일 수 있도록 매립형 유리 게시판을 설치했습니다.
ㄱ자 형태의 붙박이 벤치를 제작해 공간 효율성을 높이고, 벽에는 공지사항을 깔끔하게 붙일 수 있도록 매립형 유리 게시판을 설치했습니다.

수강생들이 오가는 복도는 화이트 컬러 벽에 우드 템바보드로 포인트를 주어 따뜻한 느낌을 더했습니다.
모든 강의실 문은 아치형 디자인을 적용하여 전체 인테리어에 부드러운 통일감을 주도록 신경 썼습니다.
모든 강의실 문은 아치형 디자인을 적용하여 전체 인테리어에 부드러운 통일감을 주도록 신경 썼습니다.

성남에 위치한 바리스타 학원 로비 공간을 소개합니다. 수강생분들이 처음 마주하는 공간인 만큼, 따뜻하고 고급스러운 브랜드 이미지를 전달하는 데 중점을 두었습니다.
부드러운 질감의 자재들을 조합한 안내데스크와 아치형 등받이가 있는 대기석으로 편안한 분위기를 완성했습니다.
부드러운 질감의 자재들을 조합한 안내데스크와 아치형 등받이가 있는 대기석으로 편안한 분위기를 완성했습니다.

수강생들이 실습에 온전히 집중할 수 있도록 꾸민 바리스타 학원 실습실입니다.
따뜻한 우드톤 하부장을 설치해 내추럴하고 편안한 분위기를 만들었습니다.
커피 머신 위로는 포인트가 되는 조명을 달아 조도를 확보하고 따뜻한 느낌을 더했습니다.
따뜻한 우드톤 하부장을 설치해 내추럴하고 편안한 분위기를 만들었습니다.
커피 머신 위로는 포인트가 되는 조명을 달아 조도를 확보하고 따뜻한 느낌을 더했습니다.

실습 위주의 커리큘럼에 맞춰 설계한 바리스타 학원 실습실입니다.
여러 수강생이 함께 연습할 수 있도록 긴 테이블을 넉넉하게 배치하고, 우드 톤의 수납장을 길게 제작해 실용성을 높였습니다.
여러 수강생이 함께 연습할 수 있도록 긴 테이블을 넉넉하게 배치하고, 우드 톤의 수납장을 길게 제작해 실용성을 높였습니다.

이곳은 대표님의 개인 업무 공간입니다.
차분하고 안정적인 분위기를 원하시는 요청에 맞춰 어두운 컬러의 우드 마감재를 사용해 무게감을 더했습니다.
책상 위에는 라인 펜던트 조명으로 포인트를 주었고, 한쪽 벽면에는 넉넉한 책장을 두어 실용적으로 활용할 수 있도록 꾸며드렸습니다.
차분하고 안정적인 분위기를 원하시는 요청에 맞춰 어두운 컬러의 우드 마감재를 사용해 무게감을 더했습니다.
책상 위에는 라인 펜던트 조명으로 포인트를 주었고, 한쪽 벽면에는 넉넉한 책장을 두어 실용적으로 활용할 수 있도록 꾸며드렸습니다.
마무리하며
이번 프로젝트는 전문적인 실습과 따뜻한 브랜드 이미지를 모두 담아낸 **바리스타 학원**을 만드는 데 중점을 두었습니다.
고객님의 요청에 따라 입구에는 **아치형 우드 패널**로 부드러운 첫인상을 만들고, **샌드 텍스처 대리석과 골드 포인트**를 더한 인포데스크로 고급스러운 분위기를 연출했습니다.
또한 실습 위주의 **상업공간** 특성을 살려 외부에서도 내부가 잘 보이도록 벽에 큰 창을 냈으며, 모든 문에는 **아치형 창** 디자인을 적용해 디자인에 통일감을 더했습니다.
상담실은 유리 파티션으로 개방감을 살리는 등 공간마다 실용성을 높여, 수강생과 운영자 모두 만족할 수 있는 공간을 완성할 수 있었습니다.
궁금한 점은 문의 남겨주시면 친절히 안내드리겠습니다 :)
그럼 지금까지 굿테리어 홍희지 디자이너였습니다. 다음에 또 다른 프로젝트로 찾아뵙겠습니다