방배동 30평 한의원 인테리어
환자를 배려한 동선과 따뜻한 색감
안녕하세요! 굿테리어 함영주 디자이너입니다.
이번에 소개해 드릴 곳은 방배동에 위치한 30평대 한의원 인테리어 현장입니다.
원장님께서는 방문객들이 병원이라는 느낌보다 편안한 공간에서 휴식을 취하길 바라셨고, 저희는 그 마음에 집중했습니다.
부드러운 아이보리와 베이지 톤을 바탕으로 템바보드와 우드 소재를 더해 따뜻함을 연출하고, 공간 곳곳에 은은한 간접조명을 계획해 안정감을 더했습니다.
몸과 마음이 편안해지는 공간, 지금부터 저와 함께 자세히 둘러보실까요?
👇 함께 보면 좋은 인테리어
구로 20평 한의원 인테리어

마곡 22평 한의원 인테리어

마곡 20평대 한의원 인테리어
30평 모던 한의원 인테리어
.webp)
강남 40평 치과 인테리어

왕십리 21평 약국 인테리어

용인 41평 치과 인테리어

논현 ONDO° 성형외과 인테리어
마곡 40평 치과 인테리어

도곡동 피트리움 헬스장

선유도 29평 세무사 사무실

광명 60평 사무실 인테리어

청량리 13평 미용실 인테리어

안산 40평 반도체 회사 사무실 인테리어

신촌 40평 피부과 인테리어

50평 어린이 치과 인테리어

동탄 36평 사무실 쇼룸 인테리어

서초 로운 피트니스

송도 53평 세무회계 사무실 인테리어

광명 28평 헬스장 인테리어

평택 대한불교 불승종 선원 인테리어 시공사례

평택 30평대 선원 인테리어

송도 스토리움 멤버십 어린이 영어 도서관

서초 법률사무소 전용 건물 사무실 인테리어

가산 31평 사무실 쇼룸 인테리어

가산 35평 나루코퍼레이션 사무실

양천구 40평 영어학원 인테리어

마곡 82평 공유오피스 인테리어

인천서구 법무법인 사무실 인테리어

서초 34평형 푸르지오써밋 아파트 인테리어 시공사례

마곡 패트릭스와플 카페 인테리어
현장 체크
- 공간 면적: 100.83m²
- 천장고: 2700mm
- 공간 용도: 한의원 (의료시설)
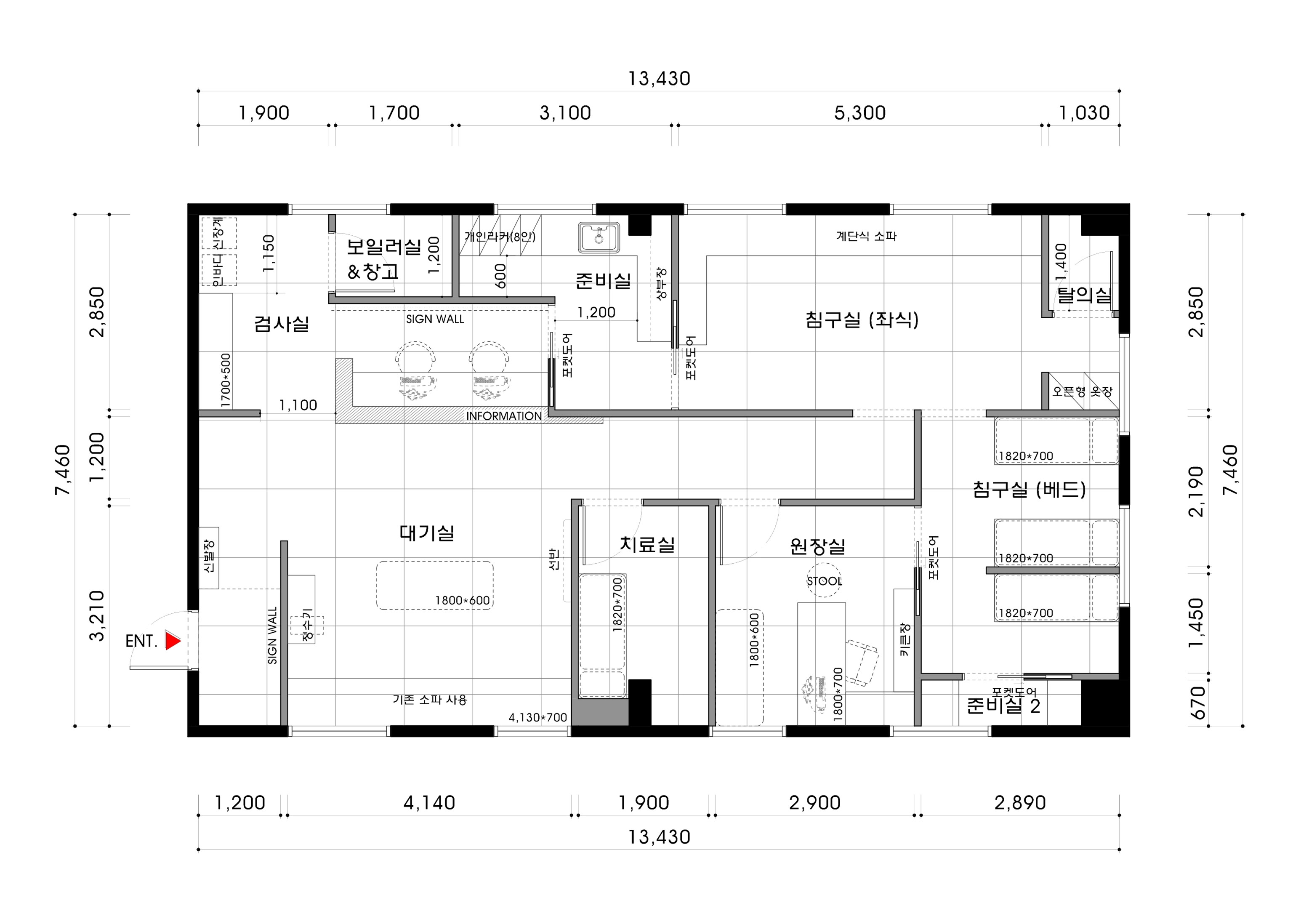
평면도

대기실
- 한의원에 들어서면 가장 먼저 마주하는 공간으로, 환자분들이 편안함을 느끼실 수 있도록 개방감을 확보했습니다.
- 동선을 방해하지 않는 위치에 인포데스크를 배치하고, 대기하시는 동안 쉴 수 있는 소파를 두었습니다.
원장실
- 원장님께서 환자분들과 깊이 있는 상담을 진행하시는 프라이빗한 공간입니다.
- 진료와 상담이 바로 이어질 수 있도록 치료실과 가깝게 배치하여 동선을 간결하게 만들었습니다.
치료실
- 본격적인 치료가 이루어지는 공간으로, 환자분이 안정감을 느낄 수 있도록 아늑하게 계획했습니다.
- 환자분의 프라이버시를 위해 다른 공간과 확실히 분리되도록 구성했습니다.
침구실
- 침 치료 후 편안하게 휴식을 취할 수 있는 공간입니다.
- 여러 개의 베드를 두면서도 서로 방해받지 않도록 배치하고, 가장 안쪽에 두어 조용한 환경을 만들어드렸습니다.
그럼, 이 공간들이 어떤 디자인으로 채워졌는지 구체적으로 살펴볼까요?
3D 영상 1분 둘러보기
디자인

템바보드로 마감한 인포데스크와 아트월은 모던하면서도 아늑한 포인트를 더해줍니다.
천장에는 매입등과 간접조명을 설치해 공간을 부드럽게 밝혔습니다.
방문하시는 모든 분이 차분하고 안정된 기분을 느끼실 수 있도록 세심하게 디자인했습니다.

전체적으로 부드러운 아이보리 톤을 사용하여 차분하고 안정적인 느낌을 주었습니다. 템바보드로 마감한 데스크와 벽면, 그리고 우드 포인트 기둥이 조화롭게 어우러져 편안하고 따뜻한 분위기를 만들어줍니다.

전체적으로 부드러운 크림과 베이지 색상을 사용해 방문하시는 분들이 긴장을 풀고 편안하게 머무르시도록 했습니다. 템바보드로 포인트를 준 인포데스크는 깔끔한 인상을 주고, 벽 선반의 은은한 간접조명이 공간을 한층 더 따뜻하게 만들어줍니다.

붙박이 벤치를 길게 제작하여 공간을 넓어 보이게 하고, 동선도 편리하게 만들어 드렸습니다.
천장의 간접조명이 은은하게 공간을 밝혀주어, 진료를 기다리는 동안 마음이 차분해지는 느낌을 받으실 수 있습니다.

따뜻한 크림색과 베이지색을 사용해 아늑하고 차분한 분위기를 만들었습니다.
천장과 선반에 설치한 간접조명이 공간을 부드럽게 밝혀주고, 벽은 투톤으로 마감해 시각적인 안정감을 더했습니다.
긴 붙박이 벤치를 두어 대기하는 시간이 편안하게 느껴지도록 세심하게 신경 썼습니다.

천장과 벽면에 은은하게 퍼지는 간접조명은 부드러운 분위기를 만들어준답니다.
공간에 딱 맞게 제작한 붙박이 벤치는 동선을 방해하지 않고 깔끔한 느낌을 줍니다.

입구에서부터 시선을 끄는 우드 루버 파티션은 공간을 부드럽게 나누어주는 역할을 합니다.
깨끗하고 정돈된 분위기 속에서 방문객들이 심리적인 안정감을 찾을 수 있도록 신경 쓴 공간입니다.

방문객들이 편안한 마음으로 머물 수 있도록 부드러운 색감으로 공간을 채웠습니다. 안내데스크와 벽면에는 세로 라인 디테일을 더해 단정하면서도 세련된 느낌을 주었고, 천장의 은은한 간접조명이 공간 전체를 부드럽게 감싸준답니다.

벽면 상단에는 은은한 간접조명을 설치해 공간이 더 넓어 보이도록 했고, 허리 높이의 템바보드 파티션으로 밋밋할 수 있는 공간에 재미를 더해준답니다.
한의원을 방문하는 분들이 이동하는 동안 편안함을 느끼실 수 있도록 세심하게 신경 쓴 공간이에요.

벽면은 베이지와 화이트 투톤 컬러로 마감해 단조로움을 피하고 따뜻한 느낌을 주었습니다.
각 치료실 문에는 아치 형태의 창문을 내어 부드러운 포인트를 더했습니다.
이곳을 찾는 분들이 긴장을 풀고 편안한 마음을 느끼실 수 있도록 세심하게 디자인했습니다.

전체적으로 따뜻한 화이트와 베이지 톤을 사용해 아늑한 분위기를 만들고, 창가 쪽에는 붙박이 벤치를 두어 공간을 실용적으로 활용하도록 했습니다.
골드 프레임의 스탠드 조명으로 은은한 포인트를 주어 고급스러움을 더했습니다.

화이트 톤을 바탕으로 깔끔하고 정돈된 느낌을 주었으며, 넉넉한 붙박이 수납장을 설치해 공간을 효율적으로 쓸 수 있도록 했습니다.
창가에는 붙박이 벤치를 만들어 방문객이 편안히 머물 수 있게 하고, 골드 포인트 조명으로 따뜻하고 고급스러운 분위기를 더했습니다.

벽면을 따라 길게 이어진 붙박이 소파는 공간을 효율적으로 사용하면서도 깔끔한 느낌을 준답니다. 천장에 설치한 매입등이 공간을 환하고 부드럽게 비춰줘요.

전체적으로 따뜻한 베이지 톤으로 컬러를 통일해 안정감을 주었고, 시각적으로도 넓어 보이도록 연출했습니다.
붙박이 소파 하단에 간접조명을 설치해 은은하고 고급스러운 분위기를 더했습니다.

전체적으로 화이트와 따뜻한 베이지 색감을 사용해 마음이 차분해지는 분위기를 만들었답니다. 천장에는 매입등을 촘촘히 설치하고 소파 아래에는 은은한 간접조명을 더해 눈이 편안하고 부드러운 공간으로 완성했습니다.

화이트와 베이지 톤을 중심으로 사용하여 한의원 전체에 따뜻하고 깨끗한 느낌을 더했습니다.
좁고 긴 공간을 최대한 활용하기 위해 계단식 붙박이 의자를 맞춤 제작해 드렸습니다.
천장의 간접조명과 매입등이 공간을 은은하게 비춰주어 머무는 동안 마음이 차분해진답니다.

천장에는 돌출된 조명 없이 매입등만 설치해서 공간이 더 넓고 깨끗해 보인답니다.
왼쪽에는 빌트인 수납장을 마련해서 필요한 물품들을 깔끔하게 정리할 수 있도록 했습니다.

베드 사이에는 낮은 가벽과 부드러운 패브릭 커튼을 설치해 다른 사람의 시선을 신경 쓰지 않고 편안하게 휴식을 취하도록 했습니다.

벽면은 투톤으로 나누어 공간에 안정감을 더해주었고, 천장에는 매입등을 설치해 복도를 은은하게 밝혀주었습니다.
디자이너 후기
이번 방배동 프로젝트는 방문하시는 분들이 마음의 안정을 찾을 수 있는 따뜻한 분위기의 한의원을 만들어달라는 요청에서 시작되었습니다.
이를 위해 전체 공간에 따뜻한 아이보리와 베이지 톤을 주로 사용하고, 템바보드와 우드 소재로 포인트를 주어 시각적으로 편안함을 느낄 수 있도록 했습니다.
또한 좁고 긴 공간을 효율적으로 활용하기 위해 대기실과 진료실 곳곳에 붙박이 벤치를 제작하여 동선을 깔끔하게 확보해 드렸습니다.
천장과 가구 하단에 설치한 은은한 간접조명은 공간 전체를 부드럽게 감싸주어, 방문객이 머무는 동안 긴장을 풀 수 있도록 도와준답니다.
궁금한 점은 문의 남겨주시면 친절히 안내드리겠습니다 :)
그럼 지금까지 굿테리어 함영주 디자이너였습니다. 다음에 또 다른 프로젝트로 찾아뵙겠습니다!

.webp)




