인천 36평 맨틀수학 학원 인테리어 시공사례

안녕하세요! 공간에 따뜻한 감성을 더하는 굿테리어, 함영주 디자이너입니다. :)
오늘은 인천 서구에 위치한 36평 규모의 맨틀수학 학원 인테리어 현장을 소개해 드리려고 합니다.
원장님께서는 아이들이 딱딱하고 차가운 분위기에서 벗어나, 따뜻하고 편안한 공간에서 즐겁게 공부하기를 바라셨습니다.
이러한 요청을 반영하여 저희는 깨끗한 화이트 톤을 바탕으로 우드 소재를 포인트로 사용하여, 전문적이면서도 아늑한 분위기를 연출해드렸습니다.
아이들의 학습 동선과 집중력까지 세심하게 고려한 공간, 지금부터 함께 만나보실까요?
👇 함께 보면 좋은 인테리어

금천 25평 수학학원 인테리어

인천 36평 수학학원 인테리어
30평 수학학원 인테리어

아산 19평 수학학원 인테리어

경기광주 19평 수학학원 인테리어

부천 36평 수학학원

군포 13평 일본어 교습소

봉담 33평 메타영수학원

관악구 리드인 독서 논술 국어학원
30평 영어학원 인테리어

소하동 MES 영어학원

합정 20평 미용실 인테리어
마곡 40평 치과 인테리어

서초 34평형 푸르지오써밋 아파트 인테리어 시공사례

안양 34평 미용실 인테리어

금천구 휴대폰 매장
_049.webp)
광명 34평 법무법인 테오 사무실
강남 40평 스튜디오 인테리어

가산 31평 사무실 쇼룸 인테리어

송도 스토리움 멤버십 어린이 영어 도서관

구로 40평 스튜디오 사무실 인테리어

평택 35평 사무실 인테리어

김포 장기동 20평대 학원 인테리어

수원 영통 90평대 대형학원 인테리어

안양 21평 요가&필라테스 인테리어

철산 21평 영수학원 인테리어

관악구 40평대 리드인 독서논술 학원
현장 체크
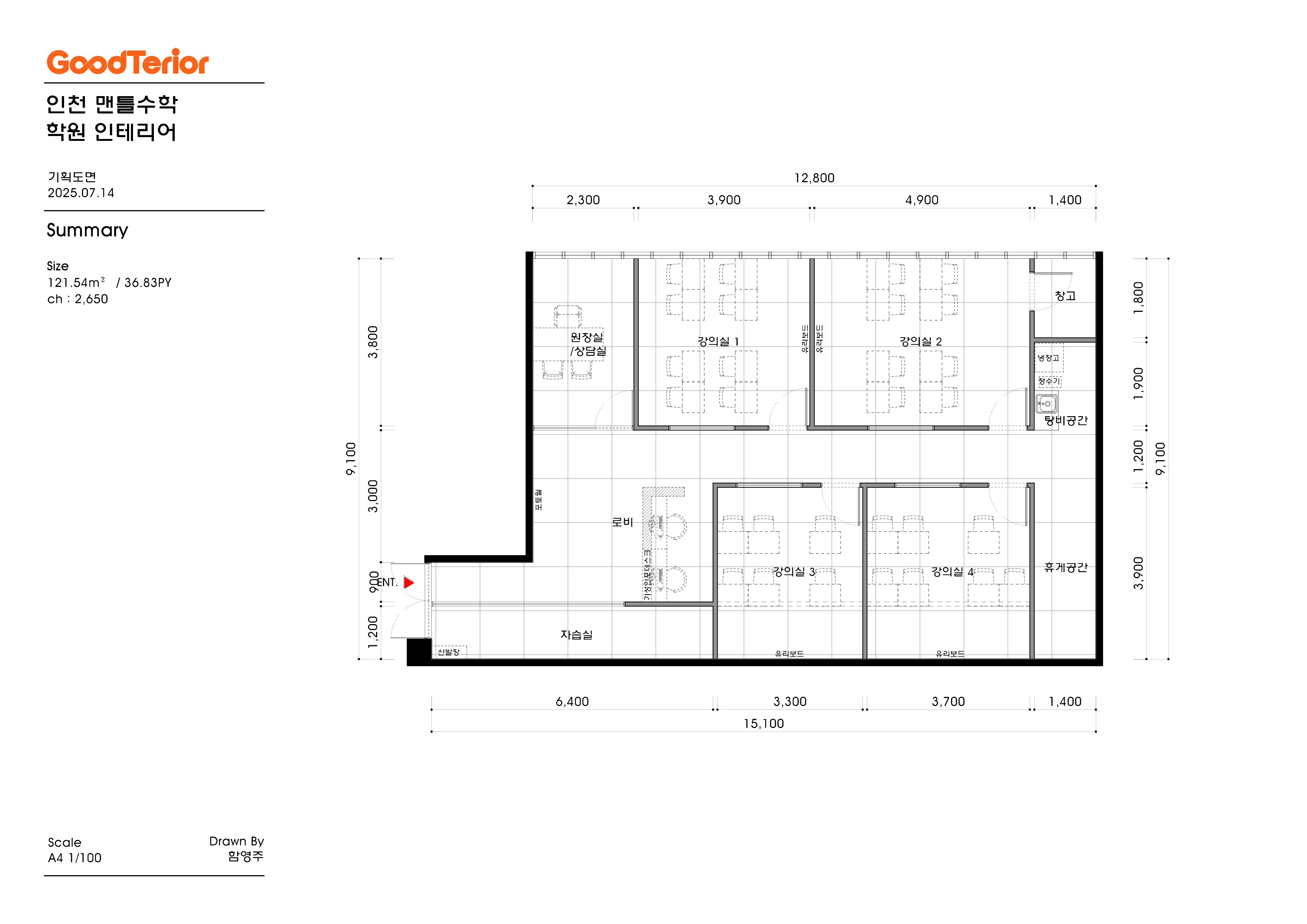
- 총 면적: 121.65m²
- 천장고: 전체 2650mm, 룸 내부 2500mm
- 발코니: 관련 허가 승인 후 철거 진행
- 내부 벽체: 경량철골 구조로 신설
- 천장 공사: 기존 석고보드 부분 보수 작업
- 바닥 마감: 데코타일 시공
- 벽체 마감: 전체 도배 시공
- 조명 설비: 룸(직부등), 복도(6인치 주광색 다운라이트) 설치
평면도

로비 및 자습실
- 학원에 들어서면 바로 보이는 공간으로, 깔끔하고 환한 첫인상을 주도록 구성했습니다. 벽면에는 포토월을 두어 학원의 이미지를 자연스럽게 보여줄 수 있도록 했습니다.
- 자습실은 출입구 가까이에 두어 학생들이 수업 전후로 편하게 이용하도록 했습니다. 다른 공간과 분리되어 있어 공부에 집중하기 좋은 환경이랍니다.
강의실
- 총 4개의 강의실은 학생들이 수업에 온전히 집중할 수 있도록 배치했습니다. 각 교실 벽면에는 유리 보드를 설치해 판서가 잘 보이고, 공간도 더 넓어 보이게 만들었습니다.
- 복도를 따라 강의실을 나란히 두어 학생들이 자기 교실을 쉽게 찾아갈 수 있습니다. 소음이 덜하도록 공간을 나누어 수업 분위기를 해치지 않게 신경 썼습니다.
원장실 겸 상담실
- 원장실 겸 상담실은 로비와 가까워 학부모님들이 방문했을 때 바로 안내하기 편리하도록 했습니다. 복도 쪽 벽을 유리 파티션으로 계획해 답답한 느낌이 들지 않도록 했습니다.
- 상담 내용은 잘 보호될 수 있도록 불투명 시트지를 붙이면 개방감과 아늑함을 동시에 챙길 수 있답니다.
탕비 및 휴게 공간
- 강의실 복도 끝에는 학생들이 잠시 쉬어갈 수 있는 휴게 공간과 탕비 공간을 마련했습니다. 동선 끝에 배치해서 학습 분위기를 방해하지 않으면서도 편하게 이용할 수 있습니다.
- 작은 공간이지만 정수기와 간단한 수납장을 두어 학생들이나 선생님들이 실용적으로 활용할 수 있도록 했습니다.
그럼, 이 계획을 바탕으로 완성된 디자인은 어떤 모습일지 함께 살펴보겠습니다.
디자인

인포데스크 뒷벽에는 격자 패턴으로 포인트를 주어 세련된 느낌을 더했습니다. 전체적으로 밝고 정돈된 분위기 속에서 학생들이 편안함을 느낄 수 있도록 신경 썼답니다.

강의실 문은 그라데이션 시트지를 붙인 유리 도어로 시공하여 답답한 느낌이 들지 않도록 했고, 작은 창을 내어 공간이 더 넓어 보이게 만들었습니다.

베이지 톤 벽과 우드 바닥으로 따뜻하고 편안한 분위기를 만들었어요.
강의실마다 우드 프레임 유리창을 크게 내서 공간이 답답해 보이지 않고, 아이들이 공부하는 모습을 볼 수 있어 안정감을 줍니다.
완공 사진

상단에는 간접조명을 설치해 로고를 은은하게 비추도록 했고, 아이들이 편하게 신발을 갈아 신을 수 있도록 벤치형 신발장을 배치해드렸습니다.

화이트 톤으로 깨끗하고 환한 분위기를 연출하고, 우드 필름으로 마감한 인포데스크를 배치해 따뜻한 포인트를 주었습니다.
벽면에는 학원의 로고를 부착해 신뢰감을 더했으며, 천장에는 매입등과 스포트라이트를 촘촘하게 설치해서 전체 공간이 밝고 전문적으로 보이도록 했습니다.

화이트와 우드 톤을 조합해 깨끗하면서도 따뜻한 첫인상을 주도록 했습니다.
벽면에는 스포트라이트 조명으로 로고를 환하게 비춰 전문적인 느낌을 더했어요.
작은 플랜테리어로 싱그러운 포인트를 준 점도 정말 마음에 든답니다.

깨끗한 화이트 벽과 천장을 기본으로 따뜻한 우드 톤을 더해 밝고 신뢰감을 주는 첫인상을 만들었어요.
가장 중요한 로고 벽면에는 스포트라이트 조명을 설치해 전문적인 브랜드 이미지가 돋보이도록 했습니다.
L자형 인포데스크는 부드러운 동선을 만들어주면서 공간에 안정감을 더해준답니다.

천장의 매입등으로 공간 전체를 환하게 밝히고, 로고월에는 스포트라이트 조명을 더해 시선이 자연스럽게 머물도록 했습니다.
방문하는 학생과 학부모님 모두 편안함과 전문성을 동시에 느낄 수 있도록 세심하게 디자인한 공간입니다.

자칫 차가워 보일 수 있는 공간에 우드 포인트 인포데스크를 배치해 따뜻하고 편안한 느낌을 더해주었습니다.
천장에는 매입등을 촘촘하게 설치해서 학생들이 공부에 집중할 수 있도록 전체적으로 밝고 환한 분위기를 만들어드렸습니다.

화이트와 우드 톤을 기본으로 깔끔하고 따뜻한 분위기를 연출했습니다.
강의실 문과 창문에는 반투명 그라데이션 시트지를 붙여 학생들이 수업에 집중하기 좋으면서도 답답하게 느껴지지 않도록 했습니다.
입구 옆에는 작은 실내 조경 공간을 마련해서 싱그러운 느낌을 더해주었답니다.

자칫 밋밋할 수 있는 공간에는 작은 실내 조경을 만들어 생기를 불어넣었습니다. 돌과 식물이 어우러져 편안하고 싱그러운 분위기를 만들어준답니다.

자칫 딱딱하게 느껴질 수 있는 공간에 자연의 요소를 더해 아이들이 편안하게 머물 수 있도록 신경 썼습니다.
한쪽 벽면은 중요한 소식을 알리는 게시판으로 활용하고, 원형 매입등과 할로겐 조명을 함께 설치해 공간 전체가 밝고 환하게 느껴지도록 했습니다.

개별 칸막이가 있는 책상을 나란히 배치해서 학생들이 서로 방해받지 않고 공부에 몰입할 수 있도록 했어요.
전체적으로 환한 화이트 톤을 사용하고 원형 매입등으로 조도를 균일하게 맞춰 눈의 피로를 덜어주도록 신경 썼습니다.

전체적으로 화이트 톤과 우드 소재를 사용해서 학생들이 편안함을 느낄 수 있는 따뜻한 분위기를 연출했습니다.
천장에는 매입등을 일렬로 시공해서 복도를 구석구석 환하게 밝혔습니다.
강의실 내부가 살짝 보이도록 우드 프레임 창을 내서 답답하지 않게 하면서도, 학생들이 수업에 집중하도록 프라이버시 필름을 붙여드렸습니다.

화이트 톤으로 깨끗하고 환한 분위기를 만들고, 무게감 있는 블랙 색상의 책상과 책장을 두어 전문적인 인상을 더했습니다.
커다란 창문 너머로 보이는 초록빛 풍경 덕분에 아늑하고 편안한 분위기에서 상담을 진행할 수 있답니다.
아이들 교재는 키가 낮은 화이트 책장에 가지런히 정리해서 공간이 답답해 보이지 않도록 했습니다.

전체적으로 화이트와 밝은 그레이 컬러를 사용해 깔끔하고 넓어 보이도록 했습니다. 자칫 차가워 보일 수 있는 공간에 따뜻한 우드 톤의 도어와 창틀로 포인트를 주어 아늑한 분위기를 연출했습니다.
천장에는 원형 매입등을 일렬로 시공해 복도를 환하게 밝히면서도 학생들이 공부에 집중하는 데 방해되지 않도록 했습니다.

공부하다 지친 학생들이 이곳에서 간단한 간식을 먹으며 잠시 머리를 식힐 수 있도록, 화이트 톤으로 깔끔하게 마무리했습니다. 가로로 긴 창은 공간이 답답해 보이지 않도록 도와준답니다.

공간이 좁고 길기 때문에 전체적으로 화이트 톤을 사용하여 깨끗하고 넓어 보이도록 연출했습니다.
벽을 따라 긴 우드 테이블을 배치하여 활용도를 높이고, 창가에는 쉬폰 커튼을 달아 부드러운 분위기를 더해주었답니다.

화이트 톤으로 깨끗하게 마감해서 시선이 분산되지 않고, 개별 칸막이 책상을 두어 집중하기 좋은 환경을 만들어드렸습니다.
자칫 차가워 보일 수 있는 공간에 우드 소재의 문과 창틀로 따뜻하고 아늑한 포인트를 주었어요.

전체적으로 화이트 톤으로 깔끔하게 마감하고, 우드 소재의 도어와 내부 창으로 따뜻한 포인트를 주었습니다.
개별 칸막이 책상을 배치해서 옆자리 방해 없이 학습에 몰입하기 좋도록 했습니다.

창가 쪽으로 칸막이 책상을 길게 배치해서 다른 학생에게 방해받지 않고 자기주도 학습을 할 수 있도록 했습니다.
전체적으로 화이트와 베이지 톤으로 차분한 분위기를 만들었고, 커다란 창으로 들어오는 자연 채광이 공간을 더 밝고 쾌적하게 만들어줍니다.

벽과 천장은 화이트 톤으로 깨끗하게 마감해 공간이 넓어 보이도록 했고, LED 평판 조명을 설치해 눈이 피로하지 않게 구석구석 밝혀주었습니다.
자칫 차가워 보일 수 있는 공간에 우드 도어와 내부 창틀로 따뜻한 포인트를 더해 아늑한 느낌을 살렸습니다.

화이트 컬러를 메인으로 사용하여 공간이 넓어 보이게 하고, 문과 창틀에는 따뜻한 우드 포인트를 주어 편안한 분위기를 더했습니다.
수업 내용에 맞춰 칠판과 전자칠판을 모두 활용할 수 있도록 나란히 배치해 드렸습니다.





디자이너 후기
이번 프로젝트는 수학학원이라는 전문적인 느낌을 주면서도, 아이들이 편안하게 공부할 수 있는 따뜻한 공간을 만들어 달라는 요청으로 시작되었습니다.
그래서 학원의 첫인상이 되는 로비는 화이트와 우드 톤을 기본으로 삼고 로고에 시선이 모이도록 스포트라이트 조명을 계획해 신뢰감을 주는 공간으로 완성했습니다.
강의실과 복도 역시 전체적인 톤을 유지하면서, 학생들이 수업에 온전히 집중할 수 있도록 차분하고 아늑한 분위기를 만드는 데 가장 신경 썼습니다.
딱딱한 분위기 대신 편안함 속에서 아이들이 수학에 즐겁게 몰입할 수 있는 학원 인테리어가 되기를 바랍니다.
궁금한 점은 문의 남겨주시면 친절히 안내드리겠습니다 :)
그럼 지금까지 굿테리어 함영주 디자이너였습니다. 다음에 또 다른 프로젝트로 찾아뵙겠습니다!

.webp)




